Prodaja stanova Zvezdara

Prodaja stanova Zvezdara

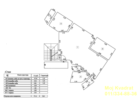
Broj oglasa: 504
Broj oglasa: 504
Filteri
Mapa
Ostavi e-mail i šaljemo ti nove oglase za prodaju stanova na Zvezdari.
*možeš da isključiš u svakom trenutku

Odaberi deo grada:










Pogledaj oglase na mapi
Sortiraj oglase:


Ostavi e-mail i šaljemo ti nove oglase za prodaju stanova na Zvezdari.

Sve novogradnje u Beogradu na jednom broju:
011 412 88 99
POZOVITE NAS VEĆ DANAS

Pošalji oglase prijatelju
Viber
WhatsApp
Kopiraj link

Strana 1 od 32

Kupovina stana na Zvezdara – atraktivna lokacija sa savršenom povezanošću i raznovrsnom ponudom

Zvezdara je jedna od najpoželjnijih beogradskih opština za kupovinu stanova, poznata po bogatoj infrastrukturi, blizini centra i velikom broju sadržaja koji olakšavaju svakodnevni život. Sa velikim brojem parkova, kulturnih institucija i prestižnih stambenih objekata, Zvezdara pruža idealnu ravnotežu između urbanog života i prirodnih lepotu. Ukoliko tražiš stan na Zvezdari, sigurno ćeš pronaći nešto što odgovara tvojim potrebama, bilo da želiš starogradnju sa dušom ili modernu novogradnju.

Gde se najviše kupuju stanovi na Zvezdari?

Zvezdara je opština koja obuhvata dosta interesantnih naselja, a mi ćemo ukratko opisati zašto su pojedina naselja odličan izbor za novi dom:

  • Cvetkova pijaca – Ova lokacija je vrlo atraktivna jer je odlično povezana sa ostatkom grada. Cvetkova pijaca je popularna među kupcima jer se nalazi u blizini prevoza koji omogućava brz pristup centru Beograda. Stanovi u ovom delu Zvezdare često imaju odličan raspored i povoljniju cenu kvadrata u poređenju sa središnjim delovima grada. Pored toga, ova lokacija je pogodna za sve one koji žele biti u blizini tržnog centrala, restorana, kafića i drugih sadržaja.
  • Zvezdarska šuma – Savršen izbor za ljubitelje prirode i tihog načina života. Blizina Zvezdarske šume doprinosi tražnji za stanovima u naseljima koja se nalaze u blizini. Ova šuma poznata je po svojim zelenim površinama, idealnim za šetnje, rekreaciju i sve one koji žele miran ambijent, ali i dobru povezanost sa centrom grada.
  • Đeram i Lion – Poznate po svojoj odličnoj povezanosti sa centrom, ovi delovi Zvezdare mogu ponuditi širok izbor stanova na prodaju, od manjih do većih stambenih objekata, koji privlače kako mlade profesionalce, tako i porodice. Sa odličnim saobraćajem i raznim sadržajima u blizini, ovi krajevi Zvezdare ostaju u vrhu interesovanja kupaca.
  • Mirijevo – Jedno od najbrže rastućih naselja u Beogradu, poznato po povoljnijim cenama stanova i novogradnji koja je u stalnom razvoju. Iako se Mirijevo nalazi nešto dalje od centra, njegova popularnost i razvoj čine ga odličnim izborom za investicije. Mnoge porodice i mladi ljudi se odlučuju na stanovanje u ovom delu Zvezdare zbog njegove mirne atmosfere i dostupnih cena.

Stanovi u starogradnji i novogradnji na Zvezdari

Zvezdara je vrlo raznolika kad je u pitanju tip stambenih objekata. Naći ćeš i prostrane stanove u starijim zgradama, koje su poznate po velikim sobama i karakterističnoj arhitekturi, ali i novogradnje koje nude moderniji dizajn, bolju energetske efikasnost i savremene sadržaje, kao što su liftovi, garaže i teretane.

Zašto kupiti stan na Zvezdari?

  • Savršen spoj prirode i urbane sredine – Blizina Zvezdarske šume i drugih parkova pruža uživanje u prirodi, dok se istovremeno nalaziš u centru urbanog života.
  • Odlična povezanost sa centrom Beograda – S’ obzirom na blizinu bulevara, Zvezdara je savršeno povezana sa svim delovima grada, a prevoz je veoma jednostavan.
  • Raznovrsna ponuda stanova – Bilo da želiš kvalitetnu starogradnju ili modernu novogradnju, Zvezdara nudi širok spektar opcija na tržištu nekretnina.
  • Blizina obrazovnih i kulturnih institucija – Zvezdara je dom mnogim obrazovnim i kulturnim institucijama, a njeni delovi poput Đerama i Liona su popularni među studentima i mladim profesionalcima.
  • Idealna za porodice i mlade ljude – Sa brojnim školama, vrtićima i igralištima, Zvezdara je idealna za porodično stanovanje. Takođe, mnoge porodične osobe biraju Zvezdaru zbog mirnog okruženja, dok su i dalje blizu svih urbanih sadržaja.

Cene stanova na Zvezdari

Zvezdara je i dalje atraktivna i za investicije, sa stabilnim tržištem nekretnina. Cene kvadrata su umerene u poređenju sa centralnim delovima Beograda, ali se stalno razvijaju. Ovaj deo grada nudi odličan potencijal za dalji rast vrednosti nekretnina, što ga čini odličnim izborom za kupce koji žele sigurno ulaganje.

Kupovina stana na Zvezdari pruža mogućnost uživanja u kvalitetnom životu, u blizini svih važnih sadržaja, prirode i urbanog okruženja. Ako tražiš stan u Beogradu, Zvezdara je opština koja nudi odličnu povezanost, kvalitetne stanove i atraktivne lokacije. Pogledaj ponudu stanova na Zvezdari i pronađi svoj idealan dom!

Osim Zvezdare, velika potražnja za stanovima u Beogradu postoji i u opštinama: Prodaja stanova Vračar, Prodaja stanova Voždovac i Prodaja stanova Palilula.

Ukoliko želiš da pogledas sve stanove koji se prodaju u Beogradu idi na stranicu prodaja stanova Beograd.