Šifra oglasa: RUMEJTOR-23182

Trosoban stan na prodaju, 73m2, 207.000€

Šifra oglasa: RUMEJTOR-23182
Beograd, Zvezdara, Konjarnik
Zvezdara, Konjarnik - Deset avijatičara, 73m2

Cena (sniženo 1%):

 210.000 € 

207.000 €

2.836 €/m2

Klikni da pozoveš ili pošalješ poruku
Kontakt telefon
Klikni na dugme da vidis broj
0653039439

Kliknite i ostavite kontakt kako biste saznali kako ovaj stan možete kupiti uz pomoć stambenog kredita:

Cena:
Šifra oglasa:
Tip objekta:
Tip gradnje:
Kvadratura:
Sprat:
Struktura:
Način grejanja:
Uknjiženost:
Stanje objekta:
Lift:
207.000 €
RUMEJTOR-23182
Stan
Starogradnja
73 m2
PR/4
3.0
CG
Uknjižen
Izvorno
Ima lift
Oglas ažuriran: 27.05.2026 (04:30)
Oglas proveren: 27.05.2026 (12:25)

Opis oglasa:
Šifra oglasa:
RUMEJTOR-23182
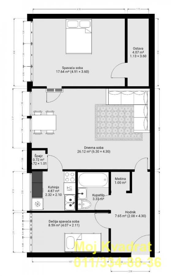
Zvezdara, Konjarnik - Deset avijatičara

3.0, 73m2, PR/4, CG, lift, telefon, interfon, podrum, parking

U ponudi za prodaju trosoban stan na Konjarniku, u održavanoj zgradi sa urednim ulazom. Okrenut je ka parku i zelenilu.

Prostorije: dnevna soba, dve spavaće sobe, kuhinja, trpezarija, kupatilo. Lođa je adaptirana u trpezariju. Takođe, ima i pripadajući podrum.

Parket je kvalitetan, hrastov. Stolarija je delimično renovirana.

Uknjižen na 64m2 korisne i 68m2 građevinske površine. Mereno ima 73m2.

Agencijska provizija 2%

Agent: Verica Ilić 063/254-891 (licenca br.1780)
Dodatne informacije: Interfon, podrum, lift, parking
Klikni da pozoveš ili pošalješ poruku
Kontakt telefon
Klikni na dugme da vidis broj
0653039439
Prijavi grešku u oglasu

Klikni na dugme i šaljemo nove oglase za prodaju stanova na Konjarniku sa cenom oko 207.000€.

Kontaktiraj oglašivača
Kvadrat nekretnine - profilna slika
Kvadrat nekretnine
Šifra oglasa: RUMEJTOR-23182
Klikni na *** za prikaz broja telefona
0653039439

Broj u registru: 167
Zakaži gledanje stana
Pitaj oglašivača
Selektuj šta te interesuje, oglašivač će ti odgovoriti u najkraćem roku:
Ostalo:
Kontaktiraj oglašivača
Kvadrat nekretnine - profilna slika
Šifra oglasa: RUMEJTOR-23182
Klikni na *** za prikaz broja telefona
0653039439

Klikni na *** za prikaz broja telefona
0113348871

Klikni na *** za prikaz broja telefona
0113348836

Klikni na *** za prikaz broja telefona
0116305219

Broj u registru: 167