Šifra oglasa: RUMEJTOR-14403

Dimitrija Tucovića, Dvosoban stan na prodaju, 51m2, 238.000€

Šifra oglasa: RUMEJTOR-14403
Beograd, Zvezdara - Dimitrija Tucovića
Nov stan, 2.0, u blizini Zire ID#RUMEJTOR-14403

Cena:
238.000 €

4.667 €/m2

Klikni da pozoveš ili pošalješ poruku
Kontakt telefon
011 412 83 75

Cena:
Šifra oglasa:
Tip objekta:
Tip gradnje:
Kvadratura:
Sprat:
Struktura:
Način grejanja:
Uknjiženost:
Stanje objekta:
Lift:
238.000 €
RUMEJTOR-14403
Stan
Starogradnja
51 m2
4/4
2.0
EG
Nije uknjižen
Izvorno
Ima lift
Oglas ažuriran: 14.03.2026 (17:15)
Oglas proveren: 17.04.2026 (02:30)

Opis oglasa:
Šifra oglasa:
RUMEJTOR-14403
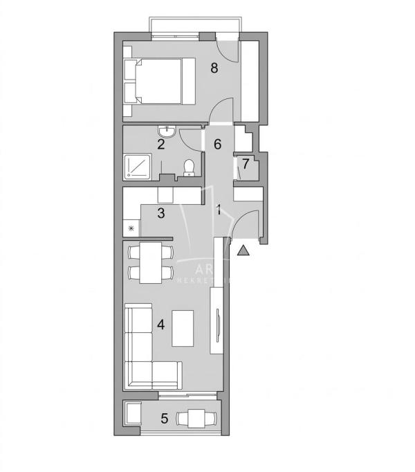
Nov dvosoban stan u objektu visoke klase u blizini Zire.

Sastoji se od dnevnog boravka sa trpezarijom, kuhinje, kupatila, spavaće sobe, vešernice i terase.
Sve u stanu je visokog kvaliteta, aluminijumska stolarija, roletne sa elektromotorima, prvoklasna keramika, grejanje na toplotne pumpe.

Mogućnost kupovine garažnog mesta po ceni od 18000+PDV.

Planirani rok završetka radova juli 2026.

Uredna dokumentacija.
Povrat PDV-a za kupce prvog stana.

Agencijska provizija 2%
Agent: Darko Slivar br. licence 4162
Art nekretnine d.o.o. Beograd.
Reg. br.339
.
Dodatne informacije: Klima, lift, garaža
Adresa: Dimitrija Tucovića
Klikni da pozoveš ili pošalješ poruku
Kontakt telefon
011 412 83 75
Prijavi grešku u oglasu

Klikni na dugme i šaljemo nove oglase za prodaju stanova na Zvezdari sa cenom oko 238.000€.

Kontaktiraj oglašivača
Art nekretnine - profilna slika
Art nekretnine
Šifra oglasa: RUMEJTOR-14403
011 412 83 75
Broj u registru: 339
Zakaži gledanje stana
Pitaj oglašivača
Selektuj šta te interesuje, oglašivač će ti odgovoriti u najkraćem roku:
Ostalo:
Kontaktiraj oglašivača
Art nekretnine - profilna slika
Šifra oglasa: RUMEJTOR-14403
011 412 83 75
Broj u registru: 339