Šifra oglasa: RUMEJTOR-22983

Lokal za izdavanje, 200m2, 6.000€

Šifra oglasa: RUMEJTOR-22983
Beograd, Vračar, Slavija
Lokal za izdavanje, centralno grejanje, oglas ID RUMEJTOR-22983

Cena:
6.000 €
Klikni da pozoveš ili pošalješ poruku
Kontakt telefon
Klikni na dugme da vidis broj
0653039439

Cena:
Šifra oglasa:
Tip objekta:
Kvadratura:
Sprat:
Način grejanja:
Uknjiženost:
6.000 €
RUMEJTOR-22983
Lokal
200 m2
PR
CG
Nije uknjižen
Oglas ažuriran: 22.01.2026 (17:39)
Oglas proveren: 30.01.2026 (19:25)

Opis oglasa:
Šifra oglasa:
RUMEJTOR-22983
Vračar, Slavija - Njegoševa

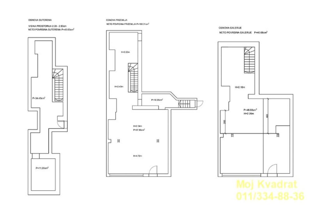
lokal, 200m2, prizemlje + galerija, grejanje na struju

Izdaje se lokal u Njegoševoj ulici sa pogledom na park. Lokal je u sivoj fazi u ima tri nivoa. Visina plafona između prizemlja i galerije je 4,8m.

Lokal je vanrednog potencijala za ugostiteljsku delatnost, uzimajući samu poziciju u izrazito prometnoj zoni, pogled na park i mogućnost otvaranja bašte, uz saglasnost Opštine Vračar.

Zakupac ima mogućnost da uređuje lokal po sopstvenom nahođenju, na način kako bi se sva uložena sredstva sukcesivno odbijala od kirije.

Agencijska provizija u skladu sa Opštim uslovima poslovanja.

Agent: Svetlana Todorov 066/239-141 (licenca br.6305)
Klikni da pozoveš ili pošalješ poruku
Kontakt telefon
Klikni na dugme da vidis broj
0653039439
Prijavi grešku u oglasu

Klikni na dugme i šaljemo nove oglase za izdavanje lokala sa centralnim grejanjem u Beogradu sa cenom oko 6.000€.

Kontaktiraj oglašivača
Kvadrat nekretnine - profilna slika
Kvadrat nekretnine
Šifra oglasa: RUMEJTOR-22983
Klikni na *** za prikaz broja telefona
0653039439

Broj u registru: 167
Zakaži gledanje stana
Pitaj oglašivača
Selektuj šta te interesuje, oglašivač će ti odgovoriti u najkraćem roku:
Ostalo:
Kontaktiraj oglašivača
Kvadrat nekretnine - profilna slika
Šifra oglasa: RUMEJTOR-22983
Klikni na *** za prikaz broja telefona
0653039439

Klikni na *** za prikaz broja telefona
0113348871

Klikni na *** za prikaz broja telefona
0113348836

Klikni na *** za prikaz broja telefona
0116305219

Broj u registru: 167