Šifra oglasa: RUMEJTOR-378806

Dvoiposoban stan na prodaju, 64.42m2, 151.387€

Šifra oglasa: RUMEJTOR-378806
Niš, Medijana, Niš centar
Niš, 2.5 sobe, Niš centar, 64.42m2

Cena:
151.387 €

2.365 €/m2

Klikni da pozoveš ili pošalješ poruku
Kontakt telefon
065 531 12 00

Kliknite i ostavite kontakt kako biste saznali kako ovaj stan možete kupiti uz pomoć stambenog kredita:

Cena:
Šifra oglasa:
Tip objekta:
Tip gradnje:
Kvadratura:
Sprat:
Struktura:
Uknjiženost:
Stanje objekta:
Terasa:
Lift:
151.387 €
RUMEJTOR-378806
Stan
Starogradnja
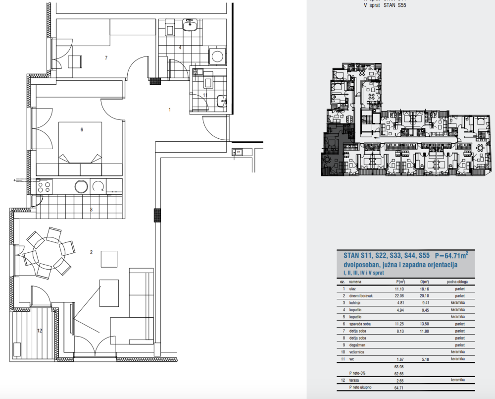
64.42 m2
5/5
2.5
Uknjižen
Izvorno
Ima terasu
Ima lift
Oglas ažuriran: 13.12.2025 (08:43)

Opis oglasa:
Šifra oglasa:
RUMEJTOR-378806
Na prodaju dvoiposoban stan u savremenom stambeno-poslovnom kompleksu u strogom centru Niša koji je projektovan prema visokim standardima gradnje, komfora i energetske efikasnosti. Objekat je planiran kao Po+P+5 i predstavlja odlično rešenu arhitektonsku celinu sa funkcionalnim rasporedima stanova, poslovnim prostorima i organizovanim parkingom. Dostupan je na više spratova.

Stan se nalazi u modernoj zgradi Izuzetnog kvaliteta — sa odabranim materijalima, odličnom izolacijom и pažljivo projektovanom konstrukcijom. Cena je iskazana sa PDV-om, a kupcima prvog stana omogućen je povraćaj PDV-a. Kupovina se vrši direktno od investitora.

Struktura objekta
U podrumskom nivou nalaze se prostorije koje značajno doprinose komforu stanara — ostave za stanove, podzemna garaža sa rampom, tehničke prostorije i protivpožarna prostorija sa nadpritiskom.
Prizemlje čine dva stana, dva poslovna prostora, glavni ulaz sa vetrobranom, kao i deo natkrivenih i nenatkrivenih parking mesta.

Na svakom od pet stambenih spratova nalazi se po 11 stanova različitih veličina i struktura, a krov je ravan, neprohodan, delimično izveden kao zeleni krov radi poboljšane izolacije и estetike.

Parking i spoljašnje uređenje
Kompleks ima ukupno 59 parking mesta: 29 u podzemnoj garaži i 30 u prizemlju, dok su 4 posebno prilagođena osobama sa invaliditetom. Spoljašnje uređenje obuhvata više od 25% zelenih površina, uključujući travnate površine, sadnice visokog zelenila, dekorativno uređenje i urbani mobilijar — sve u skladu sa visokim urbanističkim standardima.

Kvalitet gradnje i materijala
Objekat je izveden kao armirano-betonski skeletni sistem sa pločama debljine 20 cm, uz višeslojne fasadne zidove koji obezbeđuju odličnu termo- i zvučnu izolaciju. Poseban akcenat je stavljen na zaštitu od buke, naročito prema železničkom koridoru, kroz unapređene fasadne zidove i akustičnu PVC stolariju.

Unutrašnja obrada predviđa parket u boravnim i spavaćim prostorijama, dok se u kupatilima i kuhinjama ugrađuje granitna keramika. Inverter klima sistemi omogućavaju efikasno grejanje i hlađenje tokom cele godine, sa spoljnim jedinicama smeštenim diskretno iza predviđenih maski.

Ovaj moderan kompleks predstavlja izuzetnu kombinaciju savremene arhitekture, kvalitetne izrade i funkcionalnih rešenja, čineći ga idealnim za porodično stanovanje, kao i za investiciju. Zgrada ispunjava sve važeće zakonske propise iz oblasti energetike, akustike, bezbednosti i protivpožarne zaštite, pružajući sigurnost i dugoročnu vrednost za buduće stanare.
Dodatne informacije: Klima, interfon, podrum, video nadzor, lift
Klikni da pozoveš ili pošalješ poruku
Kontakt telefon
065 531 12 00
Prijavi grešku u oglasu

Klikni na dugme i šaljemo nove oglase za prodaju stanova u centru Niša sa cenom oko 151.387€.

Kontaktiraj oglašivača
Neboder nekretnine - profilna slika
Neboder nekretnine
Šifra oglasa: RUMEJTOR-378806
065 531 12 00
Broj u registru: 2058
Zakaži gledanje stana
Pitaj oglašivača
Selektuj šta te interesuje, oglašivač će ti odgovoriti u najkraćem roku:
Ostalo:
Kontaktiraj oglašivača
Neboder nekretnine - profilna slika
Šifra oglasa: RUMEJTOR-378806
065 531 12 00
Broj u registru: 2058