Šifra oglasa: RUMEJTOR-370941

U blizini Mokranjčeve ulice, Jednoiposoban stan na prodaju, 46.95m2, 89.205€

Šifra oglasa: RUMEJTOR-370941
Niš, Palilula - U blizini Mokranjčeve ulice
Niš, 1.5 soba, Palilula, 46.95m2

Cena:
89.205 €

1.939 €/m2

Klikni da pozoveš ili pošalješ poruku
Kontakt telefon
018 310 44 55

Kliknite i ostavite kontakt kako biste saznali kako ovaj stan možete kupiti uz pomoć stambenog kredita:

Cena:
Šifra oglasa:
Tip objekta:
Tip gradnje:
Kvadratura:
Sprat:
Struktura:
Način grejanja:
Uknjiženost:
Stanje objekta:
Terasa:
Lift:
89.205 €
RUMEJTOR-370941
Stan
Novogradnja
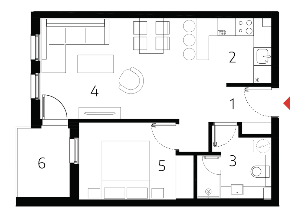
46.95 m2
2/5
1.5
EG
U izgradnji
U izgradnji
Ima terasu
Ima lift
Oglas ažuriran: 22.04.2026 (06:21)

Opis oglasa:
Šifra oglasa:
RUMEJTOR-370941
Na prodaju jednoiposoban stan u novogradnji na Paliluli, u okviru modernog stambenog kompleksa koji se trenutno gradi po najvišim standardima kvaliteta. Stan je projektovan tako da maksimalno iskoristi prostor i pruži osećaj udobnosti i topline.

Cena je izražena sa PDV-om i ista je kao kod investitora. Dostupan je na više spratova.

Odlikuje ga savršen balans između funkcionalnosti i estetike – dnevni boravak sa kuhinjom i trpezarijom čini centralni deo prostora, dok spavaća soba nudi mir i privatnost. Kvalitetni materijali i pažljivo birani detalji doprinose prijatnom ambijentu i dugotrajnosti.

Zahvaljujući primeni savremenih izolacionih materijala i smart tehnologija, život u ovom stanu biće udoban, energetski efikasan i jednostavan za održavanje. Stan je idealan izbor za pojedince, parove ili kao investicija, uz mogućnost povraćaja PDV-a za kupce prvog stana.

Ova novogradnja na Paliluli nudi mirno i prijatno okruženje, a istovremeno je odlično povezana sa svim važnim delovima grada.
Dodatne informacije: Klima, interfon, podrum, video nadzor, lift, prilaz za invalide
Adresa: U blizini Mokranjčeve ulice
Klikni da pozoveš ili pošalješ poruku
Kontakt telefon
018 310 44 55
Prijavi grešku u oglasu

Klikni na dugme i šaljemo nove oglase za prodaju stanova u novogradnji na Paliluli sa cenom oko 89.205€.

Kontaktiraj oglašivača
Neboder novogradnja - profilna slika
Neboder novogradnja
Šifra oglasa: RUMEJTOR-370941
018 310 44 55
Broj u registru: 2058
Zakaži gledanje stana
Pitaj oglašivača
Selektuj šta te interesuje, oglašivač će ti odgovoriti u najkraćem roku:
Ostalo:
Kontaktiraj oglašivača
Neboder novogradnja - profilna slika
Šifra oglasa: RUMEJTOR-370941
018 310 44 55
Broj u registru: 2058