Šifra oglasa: RUMEJTOR-p-014956

Rajićeva, Dvoiposoban stan na prodaju, 62m2, 159.770€

Šifra oglasa: RUMEJTOR-p-014956
Niš, Medijana, Niš centar - Rajićeva
Niš, 2.5 sobe, Niš centar, 62m2

Cena:
159.770 €

2.577 €/m2

Klikni da pozoveš ili pošalješ poruku
Kontakt telefon
018 415 54 79

Kliknite i ostavite kontakt kako biste saznali kako ovaj stan možete kupiti uz pomoć stambenog kredita:

Cena:
Šifra oglasa:
Tip objekta:
Tip gradnje:
Kvadratura:
Sprat:
Struktura:
Način grejanja:
Uknjiženost:
Stanje objekta:
Terasa:
Lift:
159.770 €
RUMEJTOR-p-014956
Stan
Novogradnja
62 m2
1/8
2.5
EG
Uknjižen
Izvorno
Ima terasu
Ima lift
Oglas ažuriran: 15.10.2025 (08:00)
Oglas proveren: 27.01.2026 (11:25)

Opis oglasa:
Šifra oglasa:
RUMEJTOR-p-014956
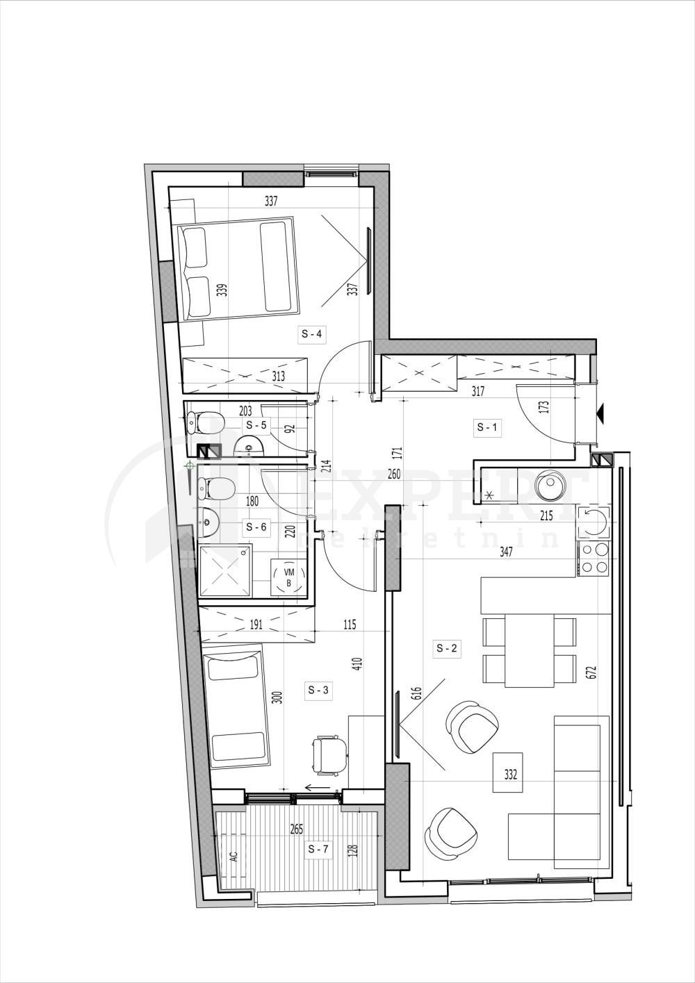
Na prodaju ekskluzivna novogradnja u centru. Stambeno poslovni objekat Po+P+8. Stan je projektovane površine 62,41m2. Nalazi se na prvom spratu, čine ga ulazni hodnik, dnevna soba sa trpezarijom i kuhinjom, dve spavaće sobe, toalet, kupatilo i terasa. Svaka stambena jedinica ima nezavisan sistem grejanja i hlađenja koji je automatizovan i moguće ga je kontrolisati putem mobilnog uređaja. Sistem za grejanje je postavljen kroz pod sa elektro-kotlom, dok je rashladni sistem sa invertor klimama. Svi podovi izvedeni su kao plivajući sa ugrađenom zvučnom izolacijom. Na podu je višelojni parket, a u kupatilu granitna keramika.Unutrašnja stolarija izrađena je od visoko kvalitetnog furnira, dok je spoljna stolarija od aluminijuma. Predviđeni rok završetka je jun 2027. godine. Za kupce prvog stana postoji mogućnost povratka PDV-a. Postoji mogućnost kupovine parking mesta. Ovo je samo deo naše ponude, za više informacija stojimo Vam na raspolaganju.
Dodatne informacije: Interfon, lift, prilaz za invalide, parking
Adresa: Rajićeva
Klikni da pozoveš ili pošalješ poruku
Kontakt telefon
018 415 54 79
Prijavi grešku u oglasu

Klikni na dugme i šaljemo nove oglase za prodaju stanova u novogradnji u centru Niša sa cenom oko 159.770€.

Kontaktiraj oglašivača
Expert Nekretnine - profilna slika
Expert Nekretnine
Šifra oglasa: RUMEJTOR-p-014956
018 415 54 79
Broj u registru: 1158
Zakaži gledanje stana
Pitaj oglašivača
Selektuj šta te interesuje, oglašivač će ti odgovoriti u najkraćem roku:
Ostalo:
Kontaktiraj oglašivača
Expert Nekretnine - profilna slika
Šifra oglasa: RUMEJTOR-p-014956
018 415 54 79
Broj u registru: 1158