Šifra oglasa: RUMEJTOR-22372

Dvoiposoban stan na prodaju, 63m2, 172.480€

Šifra oglasa: RUMEJTOR-22372
Beograd, Zvezdara, Kaluđerica
Zemun, Sutjeska - Pazovački put, 63m2

Cena:
172.480 €

2.738 €/m2

Klikni da pozoveš ili pošalješ poruku
Kontakt telefon
Klikni na dugme da vidis broj
0653039439

Kliknite i ostavite kontakt kako biste saznali kako ovaj stan možete kupiti uz pomoć stambenog kredita:

Cena:
Šifra oglasa:
Tip objekta:
Tip gradnje:
Kvadratura:
Sprat:
Struktura:
Uknjiženost:
Stanje objekta:
Lift:
172.480 €
RUMEJTOR-22372
Stan
Novogradnja
63 m2
1/4
2.5
Nije uknjižen
Izvorno
Ima lift
Oglas ažuriran: 22.05.2025 (15:13)
Oglas proveren: 31.10.2025 (12:30)

Opis oglasa:
Šifra oglasa:
RUMEJTOR-22372
Zemun, Sutjeska - Pazovački put

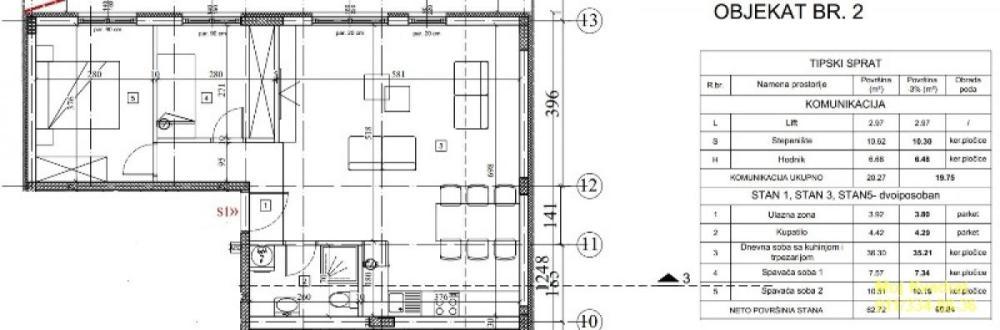
2.5, 63m2, podno grejanje/struja, inverter klima, lift, 1/4, interfon, parking, garaža

Na Pazovačkom putu gradi se zgrada sa tri sprata + povučeni sprat. Zgrada ima i garažu.

Stan je funkcionalan i sastoji se od velikog dnevnog boravka sa kuhinjom, spavaće sobe, hodnika i kupatila.

Stanovi su vrlo funkcionalni, grade se sa vrlo kvalitetnim materijalima - izolacija stiropor 10, španska keramika, PVC stolarija sa troslojnim staklom. Grejanje je podno (na struju) i svaki stan ima svoj kotao, kao i inverter klimu.

Predviđeno useljenje je maj 2026. godine, a predviđena izgrađenost kada će biti moguća kupovina preko stambenog kredita je oktobar 2025. godine.

U cenu stana je uračunat PDV.

Građevinska dozvola.

Agencijska provizija 2%

Agent: Mirela Perović 060/72-77-557 (licenca br.2566)
Dodatne informacije: Klima, interfon, lift, garaža, parking
Klikni da pozoveš ili pošalješ poruku
Kontakt telefon
Klikni na dugme da vidis broj
0653039439
Prijavi grešku u oglasu

Klikni na dugme i šaljemo nove oglase za prodaju stanova u novogradnji u Kaluđerici sa cenom oko 172.480€.

Kontaktiraj oglašivača
Kvadrat nekretnine - profilna slika
Kvadrat nekretnine
Šifra oglasa: RUMEJTOR-22372
Klikni na *** za prikaz broja telefona
0653039439

Broj u registru: 167
Zakaži gledanje stana
Pitaj oglašivača
Selektuj šta te interesuje, oglašivač će ti odgovoriti u najkraćem roku:
Ostalo:
Kontaktiraj oglašivača
Kvadrat nekretnine - profilna slika
Šifra oglasa: RUMEJTOR-22372
Klikni na *** za prikaz broja telefona
0653039439

Klikni na *** za prikaz broja telefona
0113348871

Klikni na *** za prikaz broja telefona
0113348836

Klikni na *** za prikaz broja telefona
0116305219

Broj u registru: 167