Šifra oglasa: RUMEJTOR-7808

Vuka Karadzica, Lokal za izdavanje, 270m2, 5.500€

Šifra oglasa: RUMEJTOR-7808
Beograd, Stari grad, Knez Mihailova - Vuka Karadzica
Poslovni prostor za izdavanje, centralno grejanje, oglas ID RUMEJTOR-7808

Cena (sniženo 9%):

 5.500 € 

5.500 €
Klikni da pozoveš ili pošalješ poruku
Kontakt telefon
Klikni na dugme da vidis broj
0114125875

Cena:
Šifra oglasa:
Tip objekta:
Kvadratura:
Sprat:
Način grejanja:
Uknjiženost:
5.500 €
RUMEJTOR-7808
Poslovni prostor
270 m2
3
CG
Nije uknjižen
Oglas ažuriran: 01.09.2025 (20:30)
Oglas proveren: 30.01.2026 (19:25)

Opis oglasa:
Šifra oglasa:
RUMEJTOR-7808
Izdajemo izuzetan poslovni prostor, u centru Beograda,na atraktivnoj lokaciji u Knez Mihajlovoj ulici.
Pogodan je za firme raznih profila koje imaju vise zaposlenih.
Jugoistocno je orijentisan i vrlo svetao.
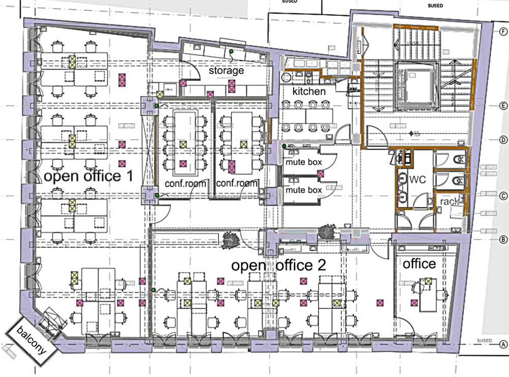
Prostor se sastoji od dve velike prostorije za desetak i vise zaposlenih,dve sale za sastanke,
Izdvojene kancelarije,dve izolovane prostorije(mute box),kuhinje,dva toaleta,ostave…
U blizini, na par minuta hoda su javne garaze (Obilicev venac i Rajiceva)
kao i linije gradskog prevoza (Studentski trg, Terazije i Zeleni venac),
restorani,kafici,banke i sve ostalo sto pruza centralna pozicija velikog grada.
Prostor je trenutno u zavrsnoj fazi renoviranja.Uslov primopredaje po dogovoru.
Cena je bez pdv-a


Dve velike prostorije otvorenog tipa svaka za maksimalno 12 do 14 osoba, dve sale za

sastanke, kancelarija, ostava, kuhinja, dva toaleta, dve prostorije(mute box). dokumentacija 3/5 Vuka Karadzica -imamo slicne NEKRETNINE BEOGRAD
Adresa: Vuka Karadzica
Klikni da pozoveš ili pošalješ poruku
Kontakt telefon
Klikni na dugme da vidis broj
0114125875
Prijavi grešku u oglasu

Klikni na dugme i šaljemo nove oglase za izdavanje poslovnih prostora sa centralnim grejanjem u Beogradu sa cenom oko 5.500€.

Kontaktiraj oglašivača
Nekretnine Obradović - profilna slika
Nekretnine Obradović
Šifra oglasa: RUMEJTOR-7808
Klikni na *** za prikaz broja telefona
0114125875

Broj u registru: 109
Zakaži gledanje stana
Pitaj oglašivača
Selektuj šta te interesuje, oglašivač će ti odgovoriti u najkraćem roku:
Ostalo:
Kontaktiraj oglašivača
Nekretnine Obradović - profilna slika
Šifra oglasa: RUMEJTOR-7808
Klikni na *** za prikaz broja telefona
0114125875

Broj u registru: 109