Šifra oglasa: RUMEJTOR-1929

Četvorosoban stan na prodaju, 158m2, 804.545€

Šifra oglasa: RUMEJTOR-1929
Beograd, Vračar, Gradić Pejton
Novogradnja,Gradić Pejton,158,32 m2,cena bez pdv-a

Cena:
804.545 €

5.092 €/m2

Klikni da pozoveš ili pošalješ poruku
Kontakt telefon
011 412 71 88

Kliknite i ostavite kontakt kako biste saznali kako ovaj stan možete kupiti uz pomoć stambenog kredita:

Cena:
Šifra oglasa:
Tip objekta:
Tip gradnje:
Kvadratura:
Sprat:
Struktura:
Način grejanja:
Uknjiženost:
Stanje objekta:
Terasa:
Lift:
804.545 €
RUMEJTOR-1929
Stan
Novogradnja
158 m2
1/4
4.0
CG
Uknjižen
Lux
Ima terasu
Ima lift
Oglas ažuriran: 25.03.2025 (16:25)
Oglas proveren: 27.05.2026 (18:25)

Opis oglasa:
Šifra oglasa:
RUMEJTOR-1929
U prilici smo da vam ponudimo veoma kvalitetan objekat u modernom arhitektonskom stilu, koji se nalazi u strogom centru grada. Realizovan je u urbanom skladu forme i gradskog života, sagrađen od najkvalitetnijih materijala koje market može da ponudi. Stanovi su veoma prostrani i glamurozni, fasada je bazirana na kamenu i fasadnoj cigli. Ulaz u zgradu je popločan mermerom, interfon je sa video nadzorom. U svakom stanu, kao i u celom objektu, stepenište je popločano granitom, kao i unutrašnjost zgrade. Objekat je opremljen hidrauličnim, bešumnim liftovima koji povezuju garaže sa stanovima. Zvučna izolacija je urađena u svakom stanu, visina plafona je 2,80m, a stanovi su sa klima uređajima, sanitarijama prve klase stranih renomiranih proizvođača, Bosal pancir ulaznim vratima, dok je spoljna stolarija kombinacija aluminijuma i drveta. Bojenje enterijera sa kvalitetnim disperzionim bojama je po izboru kupca.

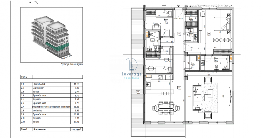
Stan se sastoji od dnevnog boravka sa kuhinjom trpezarijom, tri spavaće sobe, dva kupatila, toaleta, terase, ulaznog hodnika, vešernice, garderobera.

Lepota ovog stana je u tome što odaje ambijent porodične idile i svojim konceptom omogućava ugodan život u njemu.
Postoji mogućnost kupovine garažnog mesta u objektu.

Agencijska provizija iznosi 2% od kupoprodajne cene.

Kontaktirajte nas za više informacija.
Dodatne informacije: Interfon, lift, garaža
Klikni da pozoveš ili pošalješ poruku
Kontakt telefon
011 412 71 88
Prijavi grešku u oglasu

Klikni na dugme i šaljemo nove oglase za prodaju stanova u novogradnji u Beogradu sa cenom oko 804.545€.

Kontaktiraj oglašivača
Leverage nekretnine pro - profilna slika
Leverage nekretnine pro
Šifra oglasa: RUMEJTOR-1929
011 412 71 88
Broj u registru: 1152
Zakaži gledanje stana
Pitaj oglašivača
Selektuj šta te interesuje, oglašivač će ti odgovoriti u najkraćem roku:
Ostalo:
Kontaktiraj oglašivača
Leverage nekretnine pro - profilna slika
Šifra oglasa: RUMEJTOR-1929
011 412 71 88
Broj u registru: 1152