Šifra oglasa: RUMEJTOR-501863

Plac na prodaju, Sremska Kamenica, 309.000€

Šifra oglasa: RUMEJTOR-501863
Novi Sad, Sremska Kamenica
Plac (zemljište) , prodaja, 1442m2, oglas ID RUMEJTOR-501863

Cena:
309.000 €

214 €/m2

Klikni da pozoveš ili pošalješ poruku
Kontakt telefon
021 310 64 79

Kliknite i ostavite kontakt kako biste saznali kako ovaj stan možete kupiti uz pomoć stambenog kredita:

Cena:
Šifra oglasa:
Tip zemljišta:
Površina:
Uknjiženost:
309.000 €
RUMEJTOR-501863
Plac
1442 m2
Nije uknjižen
Oglas ažuriran: 28.06.2024 (18:31)

Opis oglasa:
Šifra oglasa:
RUMEJTOR-501863
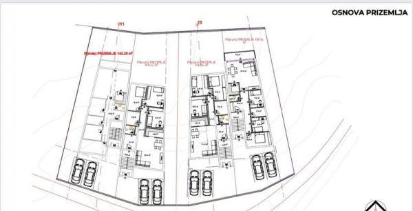
Plac sa spremnom dokumentacijom za građenje urbane vile, 2 ulaza,brutto 1.300 m2. Su+P+1+Pk (na dva nivoa), urađen projekat! U obzir dolazi i zamena za kvadrate na drugoj lokaciji! Odličan plac, front cca 27 m2. Na fotografijama render budućeg objekta! 021/425-112

Klikni da pozoveš ili pošalješ poruku
Kontakt telefon
021 310 64 79
Prijavi grešku u oglasu

Kontaktiraj oglašivača
PJ. ROYAL nekretnine, NS-GN DOO Reg.posr. 711 - profilna slika
PJ. ROYAL nekretnine, NS-GN DOO Reg.posr. 711
Šifra oglasa: RUMEJTOR-501863
021 310 64 79
Broj u registru: 711
Zakaži gledanje stana
Pitaj oglašivača
Selektuj šta te interesuje, oglašivač će ti odgovoriti u najkraćem roku:
Ostalo:
Kontaktiraj oglašivača
PJ. ROYAL nekretnine, NS-GN DOO Reg.posr. 711 - profilna slika
Šifra oglasa: RUMEJTOR-501863
021 310 64 79
Broj u registru: 711