Šifra oglasa: RUMEJTOR-221852

Dvoiposoban stan na prodaju, 53.29m2, 93.250€

Šifra oglasa: RUMEJTOR-221852
Niš, Pantelej
Niš, 2.5 sobe, Pantelej, 53.29m2

Cena:
93.250 €

1.759 €/m2

Klikni da pozoveš ili pošalješ poruku
Kontakt telefon
018 310 44 55

Kliknite i ostavite kontakt kako biste saznali kako ovaj stan možete kupiti uz pomoć stambenog kredita:

Cena:
Šifra oglasa:
Tip objekta:
Tip gradnje:
Kvadratura:
Sprat:
Struktura:
Uknjiženost:
Stanje objekta:
Terasa:
Lift:
93.250 €
RUMEJTOR-221852
Stan
Novogradnja
53.29 m2
2/3
2.5
U izgradnji
U izgradnji
Ima terasu
Ima lift
Oglas ažuriran: 21.09.2024 (13:28)

Opis oglasa:
Šifra oglasa:
RUMEJTOR-221852
BEZ PROVIZIJE ZA KUPCE - kupovina direktno od investitora! Prodaje se komforan stan u izgradnji na odličnoj lokaciji na Panteleju. Grejanje je etažno.

Slobodan je na 1. i 2. spratu.

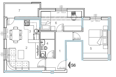
Raspored prostorija i njihovu kvadraturu možete pogledati u fotografijama.

Moguć povraćaj PDV-a za kupce prvog stana. Uz stan možete dokupiti parking mesto po ceni od 6.000€.
Dodatne informacije: Klima, interfon, video nadzor, lift, prilaz za invalide
Adresa:
Klikni da pozoveš ili pošalješ poruku
Kontakt telefon
018 310 44 55
Prijavi grešku u oglasu

Klikni na dugme i šaljemo nove oglase za prodaju stanova u novogradnji na Panteleju sa cenom oko 93.250€.

Kontaktiraj oglašivača
Neboder novogradnja - profilna slika
Neboder novogradnja
Šifra oglasa: RUMEJTOR-221852
018 310 44 55
Broj u registru: 2058
Zakaži gledanje stana
Pitaj oglašivača
Selektuj šta te interesuje, oglašivač će ti odgovoriti u najkraćem roku:
Ostalo:
Kontaktiraj oglašivača
Neboder novogradnja - profilna slika
Šifra oglasa: RUMEJTOR-221852
018 310 44 55
Broj u registru: 2058