Moderna stambena zgrada sa 7 spratova u centru Niša

Moderna stambena zgrada sa 7 spratova u centru Niša

Sadržaj prezentacije projekta:

Nova zgrada na centralnoj gradskoj lokaciji

Na jednoj od najboljih lokacija u Nišu, u centru grada, u neposrednoj blizini škola, vrtića i fakutleta, gradi se moderan stambeni objekat koji spaja vrhunski kvalitet gradnje, komfor i funkcionalnost.

Oglašene cene stanova su iste kao kod investitora, sa uračunatim PDV-om. Kupci prvog stana ostvaruju pravo na povraćaj PDV-a od 10%.

U izgradnji se koriste najkvalitetniji materijali – šabački termo blok od 20 cm i dodatna izolacija od 10 cm stiropora, dok kombinacija Alubond i demit fasade sa strukturalnim staklenim površinama daje zgradi moderan i elegantan izgled.

U stanovima je predviđena PVC stolarija nemačke proizvodnje Aluplast, sa četvorosezonskim staklima koja pružaju odličnu toplotnu i zvučnu izolaciju. Podne obloge čine Tarkett parket debljine 14 mm i granitna keramika u kuhinji, kupatilu i hodniku, što dodatno doprinosi kvalitetu i estetici prostora.

Grejanje je etažno, što omogućava potpunu kontrolu potrošnje i komfora. Arhitektonski koncept zgrade pažljivo je uklopljen u okolinu, a sam objekat odiše modernim izgledom, elegancijom i funkcionalnošću.

Zgrada je projektovana tako da pruži sve što je potrebno za savremen i udoban život. Svaki stan ima terasu, zgrada ima lift i mogućnost kupovine parking mesta u podzemnoj garaži po ceni od 20.000 €.

Savršen spoj lokacije, kvaliteta i udobnosti – Vaš novi dom u centru grada.

CENA OD:
2.500 €/m²
MOGUĆNOST POVRAĆAJA PDV!

Završetak radova: 2027. godine


Podelite link projekta sa prijateljima
Kopiraj link

Dostupnost parkinga i garaže

Podzemna garaža

20.000€


Modeli plaćanja prilikom kupovine stana

Plaćanje na rate

Po dogovoru. Kontaktirajte naš prodajni tim na broj: 018 310 44 55

Plaćanje u kešu

50% u startu

Plaćanje preko kredita

50% u startu

3.000
stambene površine
30
slobodnih stanova
P0+Pr+7

Slike projekta novogradnje

Broj slika u galeriji: 3
Pozovite naš prodajni tim za sve informacije
018 310 44 55

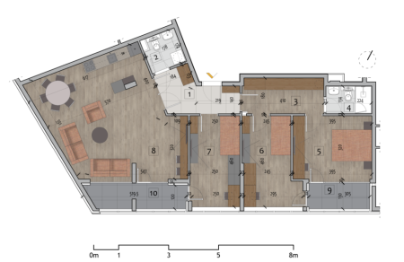
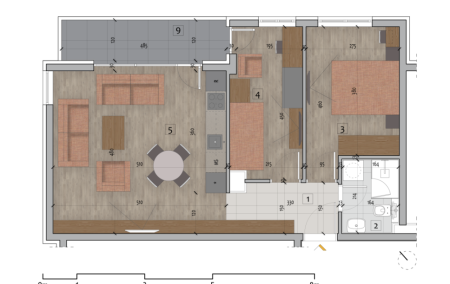
Ponuda stanova na prodaju

Zgrada ima ukupno 7 spratova. Jednoiposoban stan je dostupan samo na 7. spratu, dok su ostali stanovi dostupni na više spratova.
Cene su oglašene sa PDV-om, iste kao kod investitora.
Za informacije o dostupnim stanovima pozovite na broj 018 310 44 55.
Lift u zgradi
Prilaz za invalide
Etažno grejanje

Benefiti zgrade

Termo blok od 20 cm + izolacija je 10 cm stiropora
Alubond i demit fasada u kombinaciji sa strukturalnom staklenom fasadom
Stakla koja imaju toplotnu i zvučnu izolaciju
Stanovi imaju terase
Lift

Opremljenost stanova

PVC stolarija nemačke proizvodnje i kvaliteta
Stakla na prozorima za četiri godišnja doba
Kronospan tarket parket 14 mm
Granitna keramika u kuhinji, kupatilu I hodniku

Važni objekti u blizini zgrade

U blizini Voždove škole i 2 gimnazije
U blizini gimnazije 9. maj
U blizini Filozofskog fakulteta
U blizini Doma zdravlja
U blizini centra
U blizini keja
Pozovite naš prodajni tim za sve informacije
018 310 44 55

Kontaktirajte prodajni tim

Ostavite kontakt podatke i zakazaćemo sastanak. Javićemo vam se u najkraćem mogućem roku.

Pošaljite upit