 
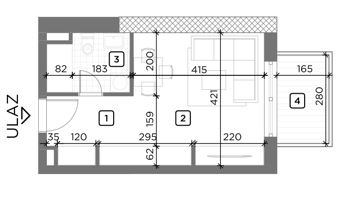
				| Prostorije | |
|---|---|
| 1. Ulazna vrata | 04,00 m² | 
| 2. Višenamenska soba sa prostorom za pripremu hrane | 19,27 m² | 
| 3. Kupatilo | 04,75 m² | 
| Neto stan bez terase | |
| 4. Terasa | 04,62 m² | 
| Ukupno stan | 32,64 m² | 
| Prostorije | |
|---|---|
| 1. Ulazna vrata | 05,01 m² | 
| 2. Kuhinja | 04,00 m² | 
| 3. Prostor za obedovanje | 04,00 m² | 
| 4. Dnevna soba | 17,08 m² | 
| 5. Kupatilo | 04,75 m² | 
| 6. Soba | 15,02 m² | 
| Neto stan bez terase | 49,86 | 
| 7. Terasa | 04,62 m² | 
| Ukupno stan | 54,48 m² | 
| Prostorije | |
|---|---|
| 1. Ulazna zona | 05,01 m² | 
| 2. Kuhinja | 04,00 m² | 
| 3. Prostor za obedovanje | 04,00 m² | 
| 4. Dnevna soba | 17,08 m² | 
| 5. Kupatilo | 04,75 m² | 
| 6. Soba | 15,02 m² | 
| Neto stan bez terase | 49,86 | 
| 7. Terasa | 19,95 m² | 
| Ukupno stan | 69,81 m² | 
| Prostorije | |
|---|---|
| 1. Ulazna zona | 06,26 m² | 
| 2. Kuhinja | 04,00 m² | 
| 3. Prostor za obedovanje | 04,00 m² | 
| 4. Dnevna soba | 17,08 m² | 
| 5. WC | 02,85 m² | 
| 6. Kupatilo | 05,03 m² | 
| 7. Degažman | 04,15 m² | 
| 8. Soba | 15,02 m² | 
| 9. Soba | 12,62 m² | 
| Neto stan bez terase | 71,68 | 
| 10. Terasa | 29,68 m² | 
| Ukupno stan | 100,69 m² | 
| Prostorije | |
|---|---|
| 1. Ulazna zona | 09,93 m² | 
| 2. Kuhinja | 04,00 m² | 
| 3. Prostor za obedovanje | 04,00 m² | 
| 4. Dnevna soba | 18,20 m² | 
| 5. WC | 03,12 m² | 
| 6. Kupatilo | 04,40 m² | 
| 7. Soba | 15,02 m² | 
| 8. Soba | 12,62 m² | 
| Neto stan bez terase | 71,29 | 
| 9. Terasa | 11,29 m² | 
| Ukupno stan | 82,58 m² | 
| Prostorije | |
|---|---|
| 1. Ulazna zona | 06,26 m² | 
| 2. Kuhinja | 04,00 m² | 
| 3. Prostor za obedovanje | 04,00 m² | 
| 4. Dnevna soba | 17,08 m² | 
| 5. WC | 02,85 m² | 
| 6. Kupatilo | 05,03 m² | 
| 7. Degažman | 04,15 m² | 
| 8. Soba | 15,02 m² | 
| 9. Soba | 12,62 m² | 
| Neto stan bez terase | 71,01 | 
| 10. Terasa | 04,62 m² | 
| Ukupno stan | 75,63 m² | 
| Prostorije | |
|---|---|
| 1. Ulazna zona | 09,20 m² | 
| 2. Kuhinja | 04,00 m² | 
| 3. Prostor za obedovanje | 05,00 m² | 
| 4. Dnevna soba | 20,65 m² | 
| 5. WC | 03,65 m² | 
| 6. Kupatilo | 05,13 m² | 
| 7. Degažman | 04,30 m² | 
| 8. Soba | 12,57 m² | 
| 9. Soba | 12,47 m² | 
| 10. Soba | 17,37 m² | 
| Neto stan bez terase | 94,34 | 
| 11. Terasa | 04,62 m² | 
| Ukupno stan | 98,96 m² | 
| Prostorije | |
|---|---|
| 1. Ulazna zona | 14,36 m² | 
| 2. Kuhinja | 08,00 m² | 
| 3. Prostor za obedovanje | 08,00 m² | 
| 4. Dnevna soba | 20,87 m² | 
| 5. WC | 03,86 m² | 
| 6. Kupatilo | 05,03 m² | 
| 7. Degažman | 04,23 m² | 
| 8. Soba | 09,13 m² | 
| 9. Soba | 15,69 m² | 
| 10. Soba | 15,02 m² | 
| Neto stan bez terase | 104,19 | 
| 11. Terasa | 23,63 m² | 
| Ukupno stan | 127,82 m² | 
| Prostorije | |
|---|---|
| 1. Ulazna zona | 11,81 m² | 
| 2. Kuhinja | 10,00 m² | 
| 3. Prostor za obedovanje | 10,00 m² | 
| 4. Dnevna soba | 29,11 m² | 
| 5. WC | 03,86 m² | 
| 6. Kupatilo | 05,03 m² | 
| 7. Degažman | 04,15 m² | 
| 8. Soba | 08,84 m² | 
| 9. Soba | 08,84 m² | 
| 10. Soba | 12,62 m² | 
| Neto stan bez terase | 104,26 | 
| 11. Terasa | 23,63 m² | 
| Ukupno stan | 127,89 m² | 
| Prostorije | |
|---|---|
| 1. Ulazna zona | 11,27 m² | 
| 2. Kuhinja | 14,70 m² | 
| 3. Prostor za obedovanje | 14,08 m² | 
| 4. Dnevna soba | 18,46 m² | 
| 5. Ostava | 04,22 m² | 
| 6. WC | 02,33 m² | 
| 7. Kupatilo | 04,09 m² | 
| 8. Degažman | 09,88 m² | 
| 9. Garderoba | 03,29 m² | 
| 10. Kupatilo | 04,75 m² | 
| 11. Soba | 19,48 m² | 
| 12. Soba | 15,69 m² | 
| 13. Soba | 11,62 m² | 
| Neto stan bez terase | 133,86 | 
| 14. Terasa | 36,80 m² | 
| Ukupno stan | 170,66 m² | 
Uloguj se preko naše forme:
Registruj se preko naše forme:
Zaboravljena lozinka: