Šifra oglasa: RUMEJTOR-3710

Ovčanski put, Jednoiposoban stan na prodaju, 46m2, 96.054€

Šifra oglasa: RUMEJTOR-3710
Beograd, Palilula, Borča - Ovčanski put
Novogradnja u Borči sa parking mestom, Ovčanski put ID#RUMEJTOR-3710

Cena:
96.054 €

2.088 €/m2

Klikni da pozoveš ili pošalješ poruku
Kontakt telefon
011 412 84 68

Kliknite i ostavite kontakt kako biste saznali kako ovaj stan možete kupiti uz pomoć stambenog kredita:

Cena:
Šifra oglasa:
Tip objekta:
Tip gradnje:
Kvadratura:
Sprat:
Struktura:
Način grejanja:
Uknjiženost:
Stanje objekta:
96.054 €
RUMEJTOR-3710
Stan
Novogradnja
46 m2
1/2
1.5
EG
Nije uknjižen
Izvorno
Oglas ažuriran: 24.04.2026 (13:56)
Oglas proveren: 24.04.2026 (16:25)

Opis oglasa:
Šifra oglasa:
RUMEJTOR-3710
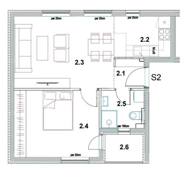
1.5, 45,74m2, terasa, I/2, EG, telefon, interfon, parking mesto. Građevinska dozvola.

🏡 Prodaja stana – Borča, Ovčanski put

U ponudi moderan jednoiposoban stan od 45,74m² u kvalitetnoj novogradnji, smešten u mirnom i planski uređenom kompleksu zatvorenog tipa.

✨ Osnovne karakteristike:

Struktura: 1.5
Površina: 45,74m²
Terasa
U cenu uključeno parking mesto
Novogradnja

📍 Lokacija:
Stan se nalazi na odličnoj lokaciji u Borči, u neposrednoj blizini Zrenjaninskog puta, što omogućava brzu povezanost sa ostatkom grada.

🏢 Kompleks:

Sastoji se od 14 lamela
Zatvoren tip – sigurnost i privatnost
Projektovan za miran, porodičan život i osećaj zajednice

🔥 Grejanje i oprema:

Podno grejanje
Klima uređaj
Energetski efikasan objekat
Stanovi do 80m² – grejanje na električne kotlove
Stanovi preko 80m² – toplotne pumpe (voda–vazduh)

🌿 Ambijent:
Kompleks pruža idealan balans između urbanog života i mira – savršen za porodice i sve koji žele kvalitetan i harmoničan prostor za život.

Cena je sa PDV. Povrat PDV za kupca prvog stana.

Rok završetka sredina 2027. godine. U ponudi stanovi različitih struktura i kvadratura.

📞 Za više informacija i zakazivanje gledanja, kontaktirajte nas na broj telefona 064/8132137 Broj u registru posrednika 1308 Agencijska provizija 2%
Dodatne informacije: Klima, interfon, parking
Adresa: Ovčanski put
Klikni da pozoveš ili pošalješ poruku
Kontakt telefon
011 412 84 68
Prijavi grešku u oglasu

Klikni na dugme i šaljemo nove oglase za prodaju stanova u novogradnji u Borči sa cenom oko 96.054€.

Kontaktiraj oglašivača
Bg home real estate - profilna slika
Bg home real estate
Šifra oglasa: RUMEJTOR-3710
011 412 84 68
Broj u registru: 1308
Zakaži gledanje stana
Pitaj oglašivača
Selektuj šta te interesuje, oglašivač će ti odgovoriti u najkraćem roku:
Ostalo:
Kontaktiraj oglašivača
Bg home real estate - profilna slika
Šifra oglasa: RUMEJTOR-3710
011 412 84 68
Broj u registru: 1308