Šifra oglasa: RUMEJTOR-23172

Lokal na prodaju, 310m2, 750.000€

Šifra oglasa: RUMEJTOR-23172
Beograd, Vračar, Slavija
Lokal na prodaju, oglas ID RUMEJTOR-23172

Cena (sniženo 5%):

 790.000 € 

750.000 €

2.419 €/m2

Klikni da pozoveš ili pošalješ poruku
Kontakt telefon
Klikni na dugme da vidis broj
0653039439

Kliknite i ostavite kontakt kako biste saznali kako ovaj stan možete kupiti uz pomoć stambenog kredita:

Cena:
Šifra oglasa:
Tip objekta:
Kvadratura:
Sprat:
Uknjiženost:
750.000 €
RUMEJTOR-23172
Lokal
310 m2
PR
Uknjižen
Oglas ažuriran: 21.04.2026 (04:25)
Oglas proveren: 27.05.2026 (23:25)

Opis oglasa:
Šifra oglasa:
RUMEJTOR-23172
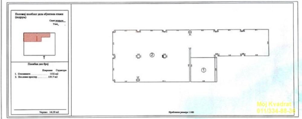
SAVSKI VENAC / SLAVIJA – UGOSTITELJSKI LOKAL SA DVE BAŠTE (310 m²)

Prodaje se ekskluzivan ugostiteljski lokal ukupne površine oko 310 m² na odličnoj lokaciji u zoni Slavija / Savski venac.

Struktura:
• Prizemlje 177 m² – visoki plafoni, otvoren prostor
• Suteren cca 130 m² – muški i ženski toaleti, pomoćne prostorije
• Dve bašte – ulično orijentisana i dvorišna

Prednosti lokala:
• Profesionalna ventilacija za kuhinju i ceo lokal
• Pogodno za restoran, kafić, lounge bar ili franšizu
• Frekventna i atraktivna lokacija

Uknjižen na 177m2.

Agencijska provizija 2%

SAVSKI VENAC / SLAVIJA – RESTAURANT SPACE WITH TWO GARDENS (310 sqm)

Premium hospitality space for sale, total area approx. 310 sqm, located in the Slavija / Savski Venac area.

Layout:
• Ground floor 177 sqm – high ceilings, open space
• Basement approx. 130 sqm – male & female restrooms, storage and service rooms
• Two garden areas – street front and courtyard

Key features:
• Professional ventilation system for kitchen and entire space
• Suitable for restaurant, café, lounge bar or franchise concept
• Busy and attractive location

Registered at 177m2.

Agency commission 2%

САВСКИ ВЕНАЦ / СЛАВИЯ – РЕСТОРАННОЕ ПОМЕЩЕНИЕ С ДВУМЯ ТЕРРАСАМИ (310 м²)

Продается помещение под ресторан общей площадью около 310 м² в районе Славия/Савски венац.

Структура:
• Первый этаж 177 м² – высокие потолки, открытое пространство
• Цоколь около 130 м² – мужской и женский туалеты, подсобные помещения
• Две террасы – уличная и во двор

Преимущества:
• Профессиональная вентиляция для кухни и всего помещения
• Подходит для ресторана, кафе, lounge bar или франшизы
• Оживленная и престижная локация

Объект зарегистрирован.

Комиссия агентства 2%
Klikni da pozoveš ili pošalješ poruku
Kontakt telefon
Klikni na dugme da vidis broj
0653039439
Prijavi grešku u oglasu

Klikni na dugme i šaljemo nove oglase za prodaju lokala u Beogradu sa cenom oko 750.000€.

Kontaktiraj oglašivača
Kvadrat nekretnine - profilna slika
Kvadrat nekretnine
Šifra oglasa: RUMEJTOR-23172
Klikni na *** za prikaz broja telefona
0653039439

Broj u registru: 167
Zakaži gledanje stana
Pitaj oglašivača
Selektuj šta te interesuje, oglašivač će ti odgovoriti u najkraćem roku:
Ostalo:
Kontaktiraj oglašivača
Kvadrat nekretnine - profilna slika
Šifra oglasa: RUMEJTOR-23172
Klikni na *** za prikaz broja telefona
0653039439

Klikni na *** za prikaz broja telefona
0113348871

Klikni na *** za prikaz broja telefona
0113348836

Klikni na *** za prikaz broja telefona
0116305219

Broj u registru: 167