Šifra oglasa: RUMEJTOR-p-015811

Palilulska, Dvoiposoban stan na prodaju, 68m2, 144.551€

Šifra oglasa: RUMEJTOR-p-015811
Niš, Palilula - Palilulska
Niš, 2.5 sobe, Palilula, 68m2

Cena:
144.551 €

2.126 €/m2

Klikni da pozoveš ili pošalješ poruku
Kontakt telefon
018 310 61 38

Kliknite i ostavite kontakt kako biste saznali kako ovaj stan možete kupiti uz pomoć stambenog kredita:

Cena:
Šifra oglasa:
Tip objekta:
Tip gradnje:
Kvadratura:
Sprat:
Struktura:
Način grejanja:
Uknjiženost:
Stanje objekta:
Terasa:
Lift:
144.551 €
RUMEJTOR-p-015811
Stan
Novogradnja
68 m2
3/10
2.5
CG
Nije uknjižen
Izvorno
Ima terasu
Ima lift
Oglas ažuriran: 15.02.2026 (17:20)
Oglas proveren: 15.02.2026 (15:55)

Opis oglasa:
Šifra oglasa:
RUMEJTOR-p-015811
U ponudi je dvoiposoban stan u savremenom stambeno-poslovnom kompleksu koji čine tri lamele modernog arhitektonskog izraza: Lamela A – kula od 15 spratova sa 182 stana Lamela B – objekat od 10 spratova sa 72 stana Lamela C – objekat od 10 spratova sa 72 stana Kompleks je projektovan tako da budućim vlasnicima pruži moderan način života kroz spoj luksuza, funkcionalnosti i komfora, uz visok kvalitet gradnje i savremeni dizajn. Ukupno je planirano 326 stanova u 14 tipova sa različitim kvadraturama i varijantama.
TIP 13 – Lamela B Idealan izbor za prvi dom, život u paru ili kao izuzetno isplativa investicija za izdavanje. Stan je projektovan po open-space konceptu, sa maksimalno iskorišćenim kvadratima i funkcionalnim rasporedom koji pruža osećaj većeg prostora.
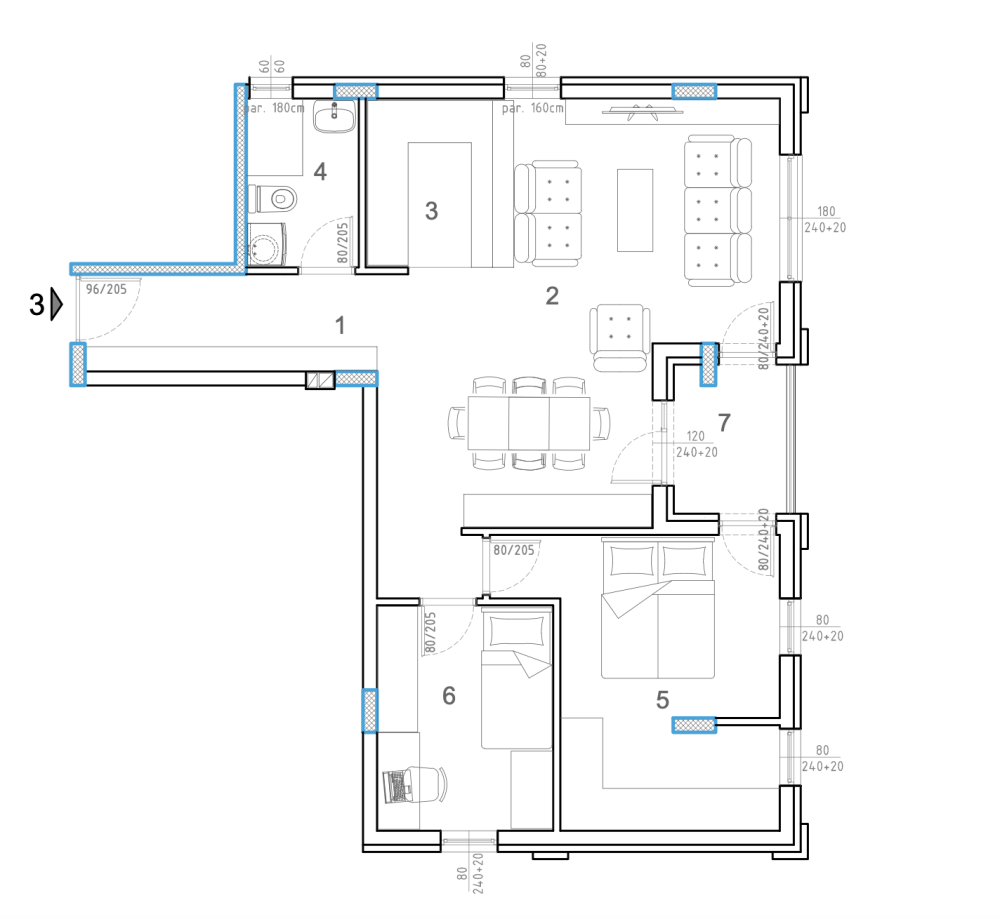
Struktura: ulazni hodnik dnevni boravak sa kuhinjom i trpezarijom dve spavaće sobe kupatilo toalet ostava terasa Kvadrature i dostupnost:
Lamela B – neto 68,87m² U ponudi 8 stanova od III do X sprata. Cena: III sprat – 2.098,89 €/m² X sprat – 2.330,14 €/m²
Kvalitet gradnje: armirano-betonska konstrukcija fasadni zidovi od kvalitetnog bloka (20 cm) termo i zvučna izolacija – kamena vuna 12 cm PVC stolarija sa šestokomornim profilima i niskoemisionim staklom sigurnosna ulazna vrata lift parket i keramika prve klase sanitarije renomiranih svetskih proizvođača grejanje sa individualnim merenjem potrošnje split klimatizacija Moguća je kupovina parking mesta u podzemnoj garaži po ceni od 13.000 € do 18.300 € + PDV. Garaža se prostire na tri nivoa i omogućava komforno parkiranje, uz ostave povezane sa parking mestima. U okviru kompleksa planirani su kafići, prodavnice i poslovni prostori, čime se formira zaokružena urbana celina sa svim sadržajima potrebnim za kvalitetan svakodnevni život. Objekat je u izgradnji, a završetak radova planiran je tokom 2028. godine. Pogodnosti plaćanja: 10% popusta za jednokratnu (keš) uplatu 3%–5% popusta za kupce putem stambenog kredita mogućnost otplate u jednakim mesečnim ratama do završetka izgradnje + dodatnih 12 meseci Ovo je samo deo naše ponude — za više informacija stojimo Vam na raspolaganju.
Dodatne informacije: Klima, interfon, lift, prilaz za invalide
Adresa: Palilulska
Klikni da pozoveš ili pošalješ poruku
Kontakt telefon
018 310 61 38
Prijavi grešku u oglasu

Klikni na dugme i šaljemo nove oglase za prodaju stanova u novogradnji na Paliluli sa cenom oko 144.551€.

Kontaktiraj oglašivača
Bulevar nekretnine - profilna slika
Bulevar nekretnine
Šifra oglasa: RUMEJTOR-p-015811
018 310 61 38
Broj u registru: 1487
Zakaži gledanje stana
Pitaj oglašivača
Selektuj šta te interesuje, oglašivač će ti odgovoriti u najkraćem roku:
Ostalo:
Kontaktiraj oglašivača
Bulevar nekretnine - profilna slika
Šifra oglasa: RUMEJTOR-p-015811
018 310 61 38
Broj u registru: 1487