Šifra oglasa: RUMEJTOR-p-015643

Knjaževačka, Dvoiposoban stan na prodaju, 64m2, 142.050€

Šifra oglasa: RUMEJTOR-p-015643
Niš, Pantelej, Durlan - Knjaževačka
Niš, 2.5 sobe, Durlan, 64m2

Cena:
142.050 €

2.220 €/m2

Klikni da pozoveš ili pošalješ poruku
Kontakt telefon
018 415 54 79

Kliknite i ostavite kontakt kako biste saznali kako ovaj stan možete kupiti uz pomoć stambenog kredita:

Cena:
Šifra oglasa:
Tip objekta:
Tip gradnje:
Kvadratura:
Sprat:
Struktura:
Način grejanja:
Uknjiženost:
Stanje objekta:
Terasa:
Lift:
142.050 €
RUMEJTOR-p-015643
Stan
Novogradnja
64 m2
1/4
2.5
EG
Nije uknjižen
Izvorno
Ima terasu
Ima lift
Oglas ažuriran: 27.01.2026 (12:10)
Oglas proveren: 15.02.2026 (15:55)

Opis oglasa:
Šifra oglasa:
RUMEJTOR-p-015643
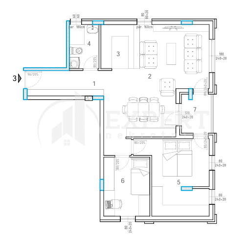
Na prodaju stan u novogradnji u blizini Rode, projektovane površine 64.56 m2. Nalazi se na jednoj od najpopularnijih lokacija za porodični život zbog blizine škole, vrtića i svih potrebnih infrastrukturnih objekata. Sastoji se od ulaznog hodnika, dnevnog boravka sa trpezarijom, kuhinje, dve spavaće sobe, kupatila i terase.Stambeno-poslovni objekat je P+4, izgrađen po svim savremenim standardima, Spoljašnja stolarija je PVC sa roletnama sa elektropodizačima,unutrašnja od medijapana sa sigurnosnim ulaznim vratima. Na podovima je troslojni tarket parket dok je keramika u kuhinji i kupatilu velikih dimenzija, prve klase. Spoljašnja izolacija je 10cm debljine, na podovima i između stanova postoji zvučna izolacija. Grejanje je etažno sa kotlom na struju i ugrađenim grejnim telima. Svakom stanu pripada ostava u podrumu zgrade dok se parking mesto dodatno naplaćuje. Moguća je kupovina putem stambenog kredita. Za kupce prvog stana postoji povrat PDV-a. Rok završetka je septembar 2027. godine. Ovo je samo deo naše ponude. Za više informacija, stojimo vam na raspolaganju.
Dodatne informacije: Interfon, lift, prilaz za invalide
Adresa: Knjaževačka
Klikni da pozoveš ili pošalješ poruku
Kontakt telefon
018 415 54 79
Prijavi grešku u oglasu

Klikni na dugme i šaljemo nove oglase za prodaju stanova u novogradnji u Durlanu sa cenom oko 142.050€.

Kontaktiraj oglašivača
Expert Nekretnine - profilna slika
Expert Nekretnine
Šifra oglasa: RUMEJTOR-p-015643
018 415 54 79
Broj u registru: 1158
Zakaži gledanje stana
Pitaj oglašivača
Selektuj šta te interesuje, oglašivač će ti odgovoriti u najkraćem roku:
Ostalo:
Kontaktiraj oglašivača
Expert Nekretnine - profilna slika
Šifra oglasa: RUMEJTOR-p-015643
018 415 54 79
Broj u registru: 1158