Šifra oglasa: RUMEJTOR-13435

Generala Đoke Popovića, Dvosoban stan na prodaju, 44m2, 117.031€

Šifra oglasa: RUMEJTOR-13435
Beograd, Voždovac - Generala Đoke Popovića
Direktna prodaja-Luksuzna novogradnja cena sa PDVom ID#RUMEJTOR-13435

Cena (sniženo 9%):

 117.031 € 

117.031 €

2.660 €/m2

Klikni da pozoveš ili pošalješ poruku
Kontakt telefon
011 412 83 75

Cena:
Šifra oglasa:
Tip objekta:
Tip gradnje:
Kvadratura:
Sprat:
Struktura:
Način grejanja:
Uknjiženost:
Stanje objekta:
Lift:
117.031 €
RUMEJTOR-13435
Stan
Novogradnja
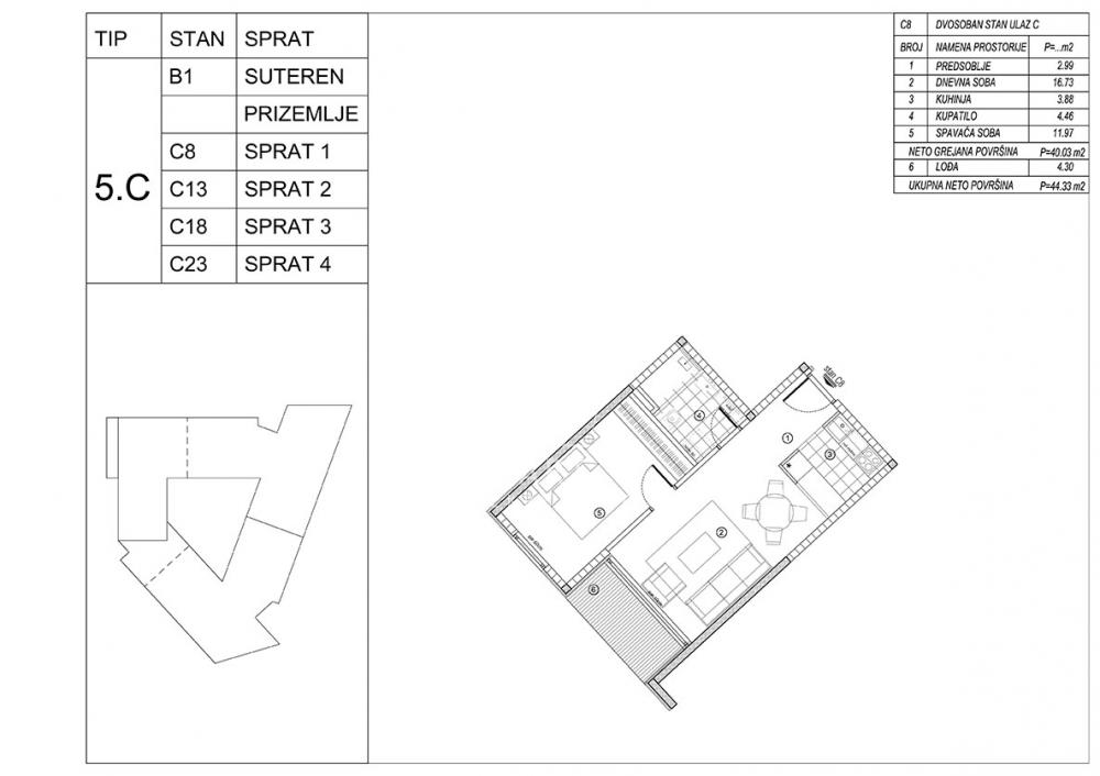
44 m2
1/4
2.0
EG
Nije uknjižen
Lux
Ima lift
Oglas ažuriran: 08.04.2026 (16:30)
Oglas proveren: 21.05.2026 (18:25)

Opis oglasa:
Šifra oglasa:
RUMEJTOR-13435
Sigurna budućnost za vašu porodicu počinje u našem kompleksu.
Cena stanova je od 2400eur/m2+PDV.
Moderan stil gradnje, podređen porodičnom komforu. Na ušuškanoj lokaciji u kompleksu izuzetnog kvaliteta.
Pored kompleksa je parcela koja je namenjena izgradnji sportskih sadržaja i zelenila.
Uz objekat je predviđena izgradnja saobraćanice koja će taj deo grada povezivati sa autoputem.
Višespratna zgrada sa tri odvojena ulaza
Unutrašnje dvorište namenjeno odmoru, druženju i bezbednom dečjem boravku
Garaža i parking, obezbeđeni za sve stanare
Moderni materijali, kvalitetna izolacija i odlična funkcionalnost stanova.
Objekat se gradi klima blokom debljine 20cm, oblaže se kamenom vunom debljine 10cm sa završnim slojem fasade od fasadnog maltera.
Spoljna stolarija je aluminijumska sa termoprekidom, plastificirana spolja.
Sigurnosna vrata na svim stanovima tipa Bosal ili slično.
Keramika prve klase.
Višeslojni parket tipa tarket ili slično.
Etažno grejanje na struju, nezavisno za svaki stan.
Rok završetka 04.2027.
Veliki izbor različitih struktura.
Izaberite svoj dom na vreme.
Povraćaj PDV-a za kupce prvog stana.
Bez plaćanja provizije za kupce.
Agent: Nikola Franelić br. licence 505
Art nekretnine d.o.o. Beograd. Reg. br.339

0694250146 .
Dodatne informacije: Interfon, lift, garaža, parking
Adresa: Generala Đoke Popovića
Klikni da pozoveš ili pošalješ poruku
Kontakt telefon
011 412 83 75
Prijavi grešku u oglasu

Klikni na dugme i šaljemo nove oglase za prodaju stanova u novogradnji na Voždovcu sa cenom oko 117.031€.

Kontaktiraj oglašivača
Art nekretnine - profilna slika
Art nekretnine
Šifra oglasa: RUMEJTOR-13435
011 412 83 75
Broj u registru: 339
Zakaži gledanje stana
Pitaj oglašivača
Selektuj šta te interesuje, oglašivač će ti odgovoriti u najkraćem roku:
Ostalo:
Kontaktiraj oglašivača
Art nekretnine - profilna slika
Šifra oglasa: RUMEJTOR-13435
011 412 83 75
Broj u registru: 339