Šifra oglasa: RUMEJTOR-p-013072

Aleksandra Petrovića, Troiposoban stan na prodaju, 96m2, 120.000€

Šifra oglasa: RUMEJTOR-p-013072
Niš, Palilula - Aleksandra Petrovića
Niš, 3.5 sobe, Palilula, 96m2

Cena:
120.000 €

1.250 €/m2

Klikni da pozoveš ili pošalješ poruku
Kontakt telefon
018 310 61 38

Kliknite i ostavite kontakt kako biste saznali kako ovaj stan možete kupiti uz pomoć stambenog kredita:

Cena:
Šifra oglasa:
Tip objekta:
Tip gradnje:
Kvadratura:
Sprat:
Struktura:
Uknjiženost:
Stanje objekta:
Terasa:
120.000 €
RUMEJTOR-p-013072
Stan
Starogradnja
96 m2
2/3
3.5
Uknjižen
Renovirano
Ima terasu
Oglas ažuriran: 11.12.2025 (10:40)
Oglas proveren: 15.02.2026 (15:55)

Opis oglasa:
Šifra oglasa:
RUMEJTOR-p-013072
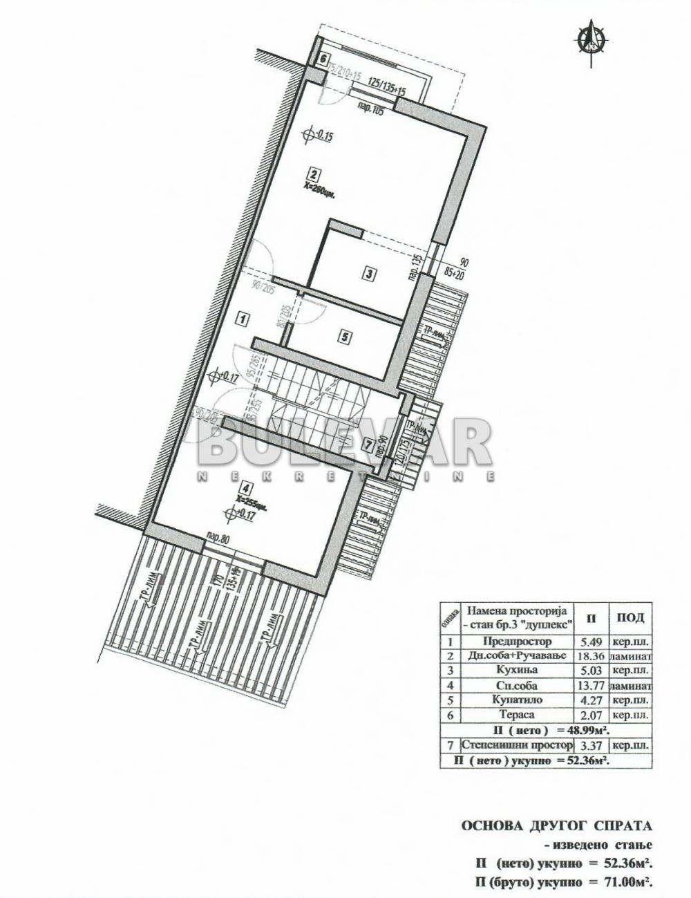
Na prodaju dupleks na Paliluli u neposrednoj blizini „Kule“ i hotela „Marica“.
Stan ima ukupno 92m2 korisne površine, prva etaža ima 52m2, a druga (PK) 44m2.
Uz stan ide i parking mesto ili garažno mesto.
Nalazi se na drugom spratu i potkrovlju, manje porodične zgrade sa tri stana.
Prva etaža drugug sprata sastoji se od ulaznog hodnika, dnevne sobe, trpezarije sa kuhinjom, spavaće sobe, kupatila i terase, druga etaža – potkrovlje je u sivoj fazi i po planu su predviđene još dve spavaće sobe i kupatilo.
Objekat je starije, čvrste gradnje. Spoljna aluminijumska stolarija sa termoizolacionim roletnama, podne obloge od tarketa, kvalitetna karamika i sanitarija u kuhinji i kupatilu.
Topla preporuka naše agencije!
Čisto vlasništvo, za više informacija slobodno pozovite.
Dodatne informacije: Klima, parking
Adresa: Aleksandra Petrovića
Klikni da pozoveš ili pošalješ poruku
Kontakt telefon
018 310 61 38
Prijavi grešku u oglasu

Klikni na dugme i šaljemo nove oglase za prodaju stanova na Paliluli sa cenom oko 120.000€.

Kontaktiraj oglašivača
Bulevar nekretnine - profilna slika
Bulevar nekretnine
Šifra oglasa: RUMEJTOR-p-013072
018 310 61 38
Broj u registru: 1487
Zakaži gledanje stana
Pitaj oglašivača
Selektuj šta te interesuje, oglašivač će ti odgovoriti u najkraćem roku:
Ostalo:
Kontaktiraj oglašivača
Bulevar nekretnine - profilna slika
Šifra oglasa: RUMEJTOR-p-013072
018 310 61 38
Broj u registru: 1487