Šifra oglasa: RUMEJTOR-3707

Trosoban stan na prodaju, 58m2, 131.152€

Šifra oglasa: RUMEJTOR-3707
Novi Sad, Telep
Prodaja luksuznih stanova Novi Sad – urbane vile Telep, jednosobni, dvosobni, trosobni i četvorosobni stanovi

Cena:
131.152 €

2.261 €/m2

Klikni da pozoveš ili pošalješ poruku
Kontakt telefon
011 412 17 86

Kliknite i ostavite kontakt kako biste saznali kako ovaj stan možete kupiti uz pomoć stambenog kredita:

Cena:
Šifra oglasa:
Tip objekta:
Tip gradnje:
Kvadratura:
Sprat:
Struktura:
Uknjiženost:
Stanje objekta:
Terasa:
Lift:
131.152 €
RUMEJTOR-3707
Stan
Novogradnja
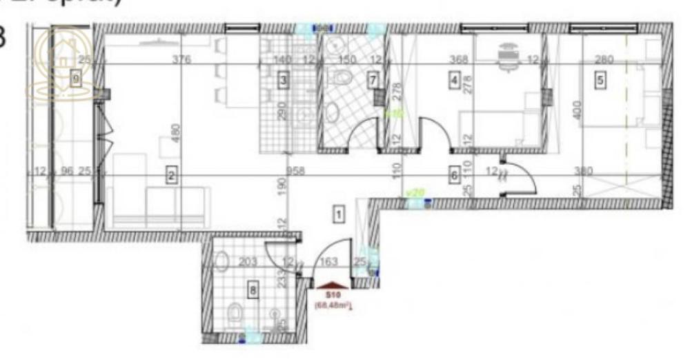
58 m2
1/1
3.0
Nije uknjižen
Lux
Ima terasu
Ima lift
Oglas ažuriran: 17.11.2025 (00:39)
Oglas proveren: 17.11.2025 (06:30)

Opis oglasa:
Šifra oglasa:
RUMEJTOR-3707
Prodaja stanova Novi Sad – Telep!

cene su izrazene bez PDV

Predstavljamo novi kompleks porodičnog stanovanja koji čini 24 luksuzne urbane vile izgrađene u nizu, sa ukupnom bruto površinom od 7.911 m² i spratnošću P+1+Pk i Po+P+1+Pk.

Ovaj ekskluzivni kompleks nalazi se u jugozapadnom delu Novog Sada, na Telepu, u blizini Dunava, u mirnom i zelenom okruženju koje pruža savršen balans između prirode i savremenog gradskog života.

Kompleks je projektovan kao zatvorena stambena zajednica sa dva kolska ulaza i dva pešačka pristupa iz dve ulice, što obezbeđuje potpunu pristupačnost i privatnost.

Svaka urbana vila sadrži tri stambene jedinice:

Jedan stan u prizemlju,

Jedan stan na prvom spratu,

Jedan dupleks stan u potkrovlju.

U ponudi su jednosobni, dvosobni, trosobni i četvorosobni stanovi površine od 40 do 105 m², kao i luksuzni penthaus stanovi sa pogledom na Dunav.

Karakteristike i prednosti:

Luksuzne urbane vile sa modernim arhitektonskim rešenjima

Pametni stanovi – integrisani smart home sistemi

Savremeni sistemi grejanja i hlađenja za maksimalnu energetsku efikasnost

Mnoštvo zelenih površina i uređenih staza za uživanje u prirodnom okruženju

U okviru kompleksa planirana je i manja samousluga za praktičnost stanara

Novi Sad na vodi planiran je u neposrednoj blizini – što dodatno podiže vrednost lokacije

Ovaj projekat predstavlja savršenu priliku za prodaja stanova Novi Sad, namenjen onima koji žele mir, luksuz i sigurnost u jednom od najlepših delova grada – Telepu.

Za sve koji traže izdavanje stanova Novi Sad, ovaj kompleks takođe nudi odličnu investicionu priliku zahvaljujući lokaciji, kvalitetu gradnje i traženosti ove zone.

Agencijska provizija u skladu sa opštim uslovima poslovanja.
Kompas Nekretnine – vaš pouzdan partner u kupovini i prodaji nekretnina.
Dodatne informacije: Klima, interfon, podrum, video nadzor, lift, duplex, garaža, parking
Klikni da pozoveš ili pošalješ poruku
Kontakt telefon
011 412 17 86
Prijavi grešku u oglasu

Klikni na dugme i šaljemo nove oglase za prodaju stanova u novogradnji na Telepu sa cenom oko 131.152€.

Kontaktiraj oglašivača
Kompas nekretnine - profilna slika
Kompas nekretnine
Šifra oglasa: RUMEJTOR-3707
011 412 17 86
Broj u registru: 1596
Zakaži gledanje stana
Pitaj oglašivača
Selektuj šta te interesuje, oglašivač će ti odgovoriti u najkraćem roku:
Ostalo:
Kontaktiraj oglašivača
Kompas nekretnine - profilna slika
Šifra oglasa: RUMEJTOR-3707
011 412 17 86
Broj u registru: 1596