Šifra oglasa: RUMEJTOR-3691

Dvosoban stan na prodaju, 54m2, 91.800€

Šifra oglasa: RUMEJTOR-3691
Novi Sad, Adice
Prodaja stanova Novi Sad –Dvosoban stan u Adicama, odlična lokacija, završetak decembar 2025!

Cena:
91.800 €

1.700 €/m2

Klikni da pozoveš ili pošalješ poruku
Kontakt telefon
011 412 17 86

Kliknite i ostavite kontakt kako biste saznali kako ovaj stan možete kupiti uz pomoć stambenog kredita:

Cena:
Šifra oglasa:
Tip objekta:
Tip gradnje:
Kvadratura:
Sprat:
Struktura:
Način grejanja:
Uknjiženost:
Stanje objekta:
Terasa:
Lift:
91.800 €
RUMEJTOR-3691
Stan
Novogradnja
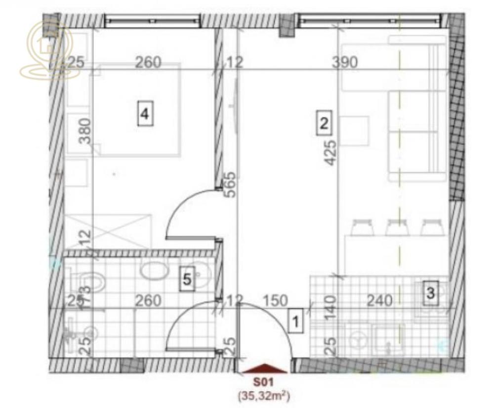
54 m2
2
2.0
Gas
Uknjižen
Izvorno
Ima terasu
Ima lift
Oglas ažuriran: 17.11.2025 (00:50)
Oglas proveren: 17.11.2025 (06:30)

Opis oglasa:
Šifra oglasa:
RUMEJTOR-3691
Opis oglasa:
Prodaja stana u Adicama po fenomenalnoj ceni! U ponudi je dvosoban stan u izgradnji, u mirnom delu Novog Sada, idealan za porodičan život. Rok završetka radova je decembar 2025. godine.

Stan se nalazi na odličnoj lokaciji, u neposrednoj blizini škole, vrtića, ambulante i dečijeg igrališta. Kvalitetna gradnja, moderan dizajn i funkcionalan raspored prostorija čine ovu nekretninu savršenim izborom za kupce koji traže komforan i miran dom u Novom Sadu.

cene su bez Pdv

vas posrednik u prodaji nekretnina agencija Kompas
Dodatne informacije: Klima, interfon, lift, parking
Klikni da pozoveš ili pošalješ poruku
Kontakt telefon
011 412 17 86
Prijavi grešku u oglasu

Klikni na dugme i šaljemo nove oglase za prodaju stanova u novogradnji na Adicama sa cenom oko 91.800€.

Kontaktiraj oglašivača
Kompas nekretnine - profilna slika
Kompas nekretnine
Šifra oglasa: RUMEJTOR-3691
011 412 17 86
Broj u registru: 1596
Zakaži gledanje stana
Pitaj oglašivača
Selektuj šta te interesuje, oglašivač će ti odgovoriti u najkraćem roku:
Ostalo:
Kontaktiraj oglašivača
Kompas nekretnine - profilna slika
Šifra oglasa: RUMEJTOR-3691
011 412 17 86
Broj u registru: 1596