Šifra oglasa: RUMEJTOR-372641

Donja Vrežina, Jednoiposoban stan na prodaju, 46.63m2, 74.608€

Šifra oglasa: RUMEJTOR-372641
Niš, Pantelej, Donja Vrežina - Donja Vrežina
Niš, 1.5 soba, Donja Vrežina, 46.63m2

Cena:
74.608 €

1.622 €/m2

Klikni da pozoveš ili pošalješ poruku
Kontakt telefon
018 310 44 55

Kliknite i ostavite kontakt kako biste saznali kako ovaj stan možete kupiti uz pomoć stambenog kredita:

Cena:
Šifra oglasa:
Tip objekta:
Tip gradnje:
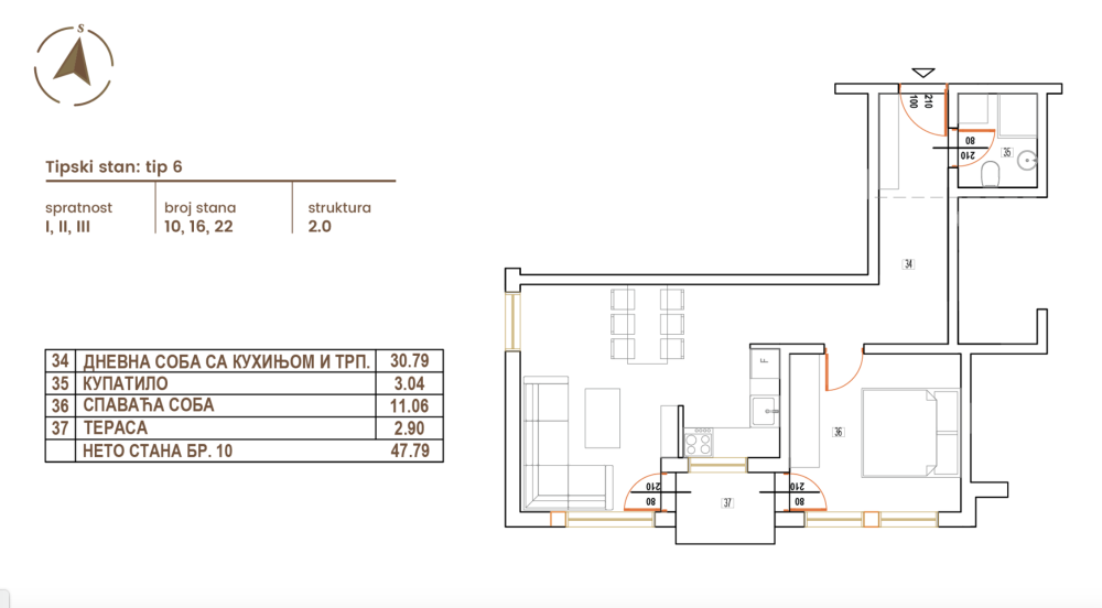
Kvadratura:
Sprat:
Struktura:
Uknjiženost:
Stanje objekta:
Terasa:
Lift:
74.608 €
RUMEJTOR-372641
Stan
Novogradnja
46.63 m2
PR/3
1.5
U izgradnji
U izgradnji
Ima terasu
Ima lift
Oglas ažuriran: 31.10.2025 (09:27)

Opis oglasa:
Šifra oglasa:
RUMEJTOR-372641
Na prodaju je jednoiposoban stan u novogradnji na mirnoj, porodičnoj lokaciji u Donjoj Vrežini. Zgrada će biti izgrađena decembra 2026. i deo je pažljivo osmišljenog stambenog kompleksa sa 22 stana, projektovanog da pruži savremenu udobnost, funkcionalnost i dugoročan kvalitet. Većina stanova su već prodati.

Za grejanje i hlađenje zadužene su inverter klime koje obezbeđuju optimalnu temperaturu i niske troškove održavanja.

Cena je ista kao kod investitora i već uključuje PDV:
1.600 €/m² za keš kupce
1.750 €/m² za kupce putem kredita
Kupci prvog stana ostvaruju pravo na povraćaj PDV-a, što ovu ponudu čini povoljnijom.

Zgrada je projektovana sa liftom, video nadzorom i interfonom, dok demit fasada sa 10 cm termoizolacije obezbeđuje odličnu energetsku efikasnost i prijatnu temperaturu tokom cele godine.

Unutrašnjost stanova krase Tarkett parket, granitna keramika prve klase, PVC šestokomorna stolarija sa niskoemisionim staklima i aluminijumskim roletnama, kao i sigurnosna ulazna vrata.
Kupatila su opremljena Geberit ugradnim vodokotlićima i kvalitetnim sanitarijama, dok su na terasama postavljene protivklizne pločice.
Dodatne informacije: Klima, interfon, video nadzor, lift, prilaz za invalide
Adresa: Donja Vrežina
Klikni da pozoveš ili pošalješ poruku
Kontakt telefon
018 310 44 55
Prijavi grešku u oglasu

Klikni na dugme i šaljemo nove oglase za prodaju stanova u novogradnji u Donjoj Vrežini sa cenom oko 74.608€.

Kontaktiraj oglašivača
Neboder novogradnja - profilna slika
Neboder novogradnja
Šifra oglasa: RUMEJTOR-372641
018 310 44 55
Broj u registru: 2058
Zakaži gledanje stana
Pitaj oglašivača
Selektuj šta te interesuje, oglašivač će ti odgovoriti u najkraćem roku:
Ostalo:
Kontaktiraj oglašivača
Neboder novogradnja - profilna slika
Šifra oglasa: RUMEJTOR-372641
018 310 44 55
Broj u registru: 2058