Šifra oglasa: RUMEJTOR-371116

U Blizini Mokranjčeve, Dvoiposoban stan na prodaju, 65.04m2, 110.568€

Šifra oglasa: RUMEJTOR-371116
Niš, Palilula - U Blizini Mokranjčeve
2.5 stan u prizemlju nove zgrade

Cena:
110.568 €

1.701 €/m2

Klikni da pozoveš ili pošalješ poruku
Kontakt telefon
065 531 12 00

Kliknite i ostavite kontakt kako biste saznali kako ovaj stan možete kupiti uz pomoć stambenog kredita:

Cena:
Šifra oglasa:
Tip objekta:
Tip gradnje:
Kvadratura:
Sprat:
Struktura:
Način grejanja:
Uknjiženost:
Stanje objekta:
Terasa:
Lift:
110.568 €
RUMEJTOR-371116
Stan
Novogradnja
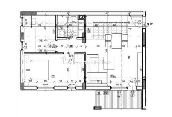
65.04 m2
PR/5
2.5
EG
U izgradnji
U izgradnji
Ima terasu
Ima lift
Oglas ažuriran: 17.10.2025 (10:58)

Opis oglasa:
Šifra oglasa:
RUMEJTOR-371116
Na prodaju dvoiposoban stan u novogradnji na Paliluli u okviru modernog stambenog kompleksa koji se trenutno gradi po najvišim standardima kvaliteta. Stan je projektovan tako da maksimalno iskoristi prostor i pruži osećaj udobnosti i topline.

Cena je izražena sa PDV-om i ista je kao kod investitora. Odlikuje ga savršen balans između funkcionalnosti i estetike – dnevni boravak sa kuhinjom i trpezarijom čini centralni deo prostora, dok spavaća soba nudi mir i privatnost. Kvalitetni materijali i pažljivo birani detalji doprinose prijatnom ambijentu i dugotrajnosti.

Zahvaljujući primeni savremenih izolacionih materijala i smart tehnologija, život u ovom stanu biće udoban, energetski efikasan i jednostavan za održavanje. Stan je idealan izbor za pojedince, parove ili kao investicija, uz mogućnost povraćaja PDV-a za kupce prvog stana. Ova novogradnja na Paliluli nudi mirno i prijatno okruženje, a istovremeno je odlično povezana sa svim važnim delovima grada.
Dodatne informacije: Klima, interfon, podrum, video nadzor, lift, ostava, prilaz za invalide
Adresa: U Blizini Mokranjčeve
Klikni da pozoveš ili pošalješ poruku
Kontakt telefon
065 531 12 00
Prijavi grešku u oglasu

Klikni na dugme i šaljemo nove oglase za prodaju stanova u novogradnji na Paliluli sa cenom oko 110.568€.

Kontaktiraj oglašivača
Neboder nekretnine - profilna slika
Neboder nekretnine
Šifra oglasa: RUMEJTOR-371116
065 531 12 00
Broj u registru: 2058
Zakaži gledanje stana
Pitaj oglašivača
Selektuj šta te interesuje, oglašivač će ti odgovoriti u najkraćem roku:
Ostalo:
Kontaktiraj oglašivača
Neboder nekretnine - profilna slika
Šifra oglasa: RUMEJTOR-371116
065 531 12 00
Broj u registru: 2058