Šifra oglasa: RUMEJTOR-22024

Dvosoban stan na prodaju, 43m2, 98.360€

Šifra oglasa: RUMEJTOR-22024
Novi Sad, Petrovaradin
Petrovaradin-Lep Dvosoban stan 43 m2 u Prizemlju-povrat PDV-065/385 8880

Cena:
98.360 €

2.287 €/m2

Klikni da pozoveš ili pošalješ poruku
Kontakt telefon
021 310 82 13

Kliknite i ostavite kontakt kako biste saznali kako ovaj stan možete kupiti uz pomoć stambenog kredita:

Cena:
Šifra oglasa:
Tip objekta:
Tip gradnje:
Kvadratura:
Sprat:
Struktura:
Način grejanja:
Uknjiženost:
Stanje objekta:
Terasa:
98.360 €
RUMEJTOR-22024
Stan
Starogradnja
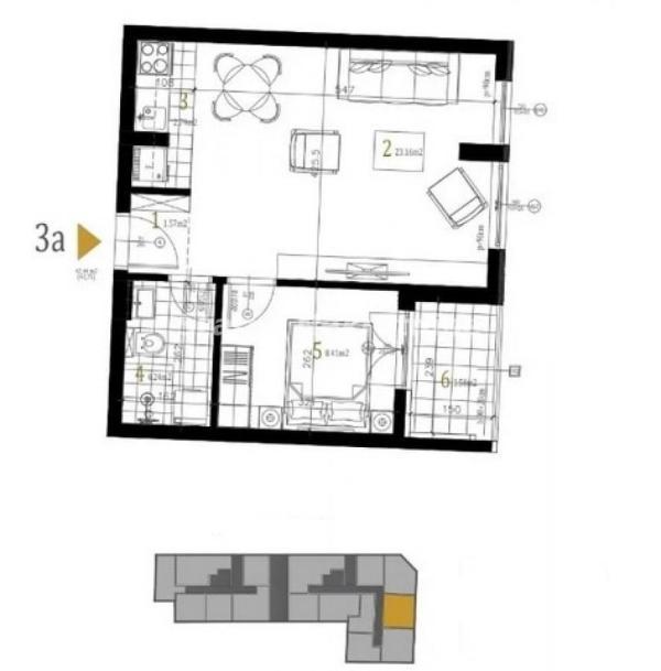
43 m2
PR/4
2.0
Gas
Nije uknjižen
Izvorno
Ima terasu
Oglas ažuriran: 20.09.2025 (11:06)
Oglas proveren: 12.10.2025 (08:30)

Opis oglasa:
Šifra oglasa:
RUMEJTOR-22024
*NAŠA PREPORUKA*...Prodajemo Lep Dvosoban stan 43 m2 u Novogradnji na ODLIČNOJ LOKACIJI...stan se nalazi u Prizemlju zgrade, ulično je orijentisan,ističe se kvalitetna ugradnja,Šestokomorna stolarija nemačkog profila,Sigurnosna vrata čelične konstrukcije prelepog dizajna u prirodnoj boji drveta,Staklene ograde na balkonima,Tarkett parket 14mm troslojni sa kraljevskom lajsnom 6cm,
Geberit skriveni vodokotlić,bojler 80L Gorenje...Grejanje je na Gas (veoma ekonomičan i pouzdan sistem...
useljenje April 2027...povrat PDV...
Posebno izdvajamo miran kraj,blizinu škole,vrtića,tržnog centra,Pijace,Tvrđave,Fruške gore,Gradskog prevoza...
OBAVEZNO POGLEDAJTE...
više informacija na tel. 065/385 8880...Mišo Licenca broj 2465
ili na www.status-nekretnine.com A57-RUMEJTOR-22024
(STATUS NEKRETNINE D.O.O UPISAN U REGISTAR POSREDNIKA POD BR.182)
Klikni da pozoveš ili pošalješ poruku
Kontakt telefon
021 310 82 13
Prijavi grešku u oglasu

Klikni na dugme i šaljemo nove oglase za prodaju stanova u Petrovaradinu sa cenom oko 98.360€.

Kontaktiraj oglašivača
Status nekretnine - profilna slika
Status nekretnine
Šifra oglasa: RUMEJTOR-22024
021 310 82 13
Broj u registru: 182
Zakaži gledanje stana
Pitaj oglašivača
Selektuj šta te interesuje, oglašivač će ti odgovoriti u najkraćem roku:
Ostalo:
Kontaktiraj oglašivača
Status nekretnine - profilna slika
Šifra oglasa: RUMEJTOR-22024
021 310 82 13
Broj u registru: 182