Šifra oglasa: RUMEJTOR-p-014818

Tolstojeva, Jednoiposoban stan na prodaju, 45m2, 72.000€

Šifra oglasa: RUMEJTOR-p-014818
Niš, Pantelej, Donja Vrežina - Tolstojeva
Niš, 1.5 soba, Donja Vrežina, 45m2

Cena:
72.000 €

1.600 €/m2

Klikni da pozoveš ili pošalješ poruku
Kontakt telefon
018 415 54 79

Kliknite i ostavite kontakt kako biste saznali kako ovaj stan možete kupiti uz pomoć stambenog kredita:

Cena:
Šifra oglasa:
Tip objekta:
Tip gradnje:
Kvadratura:
Sprat:
Struktura:
Uknjiženost:
Stanje objekta:
72.000 €
RUMEJTOR-p-014818
Stan
Novogradnja
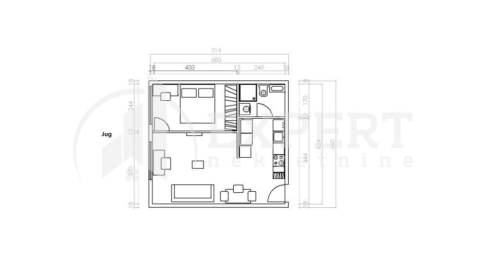
45 m2
2/3
1.5
Uknjižen
Izvorno
Oglas ažuriran: 15.12.2025 (17:27)
Oglas proveren: 27.01.2026 (11:25)

Opis oglasa:
Šifra oglasa:
RUMEJTOR-p-014818
Na prodaju jednoiposoban stan u novogradnji P+VP+2,u blizini OŠ "Mika Antić, 45 m2. Stan se sastoji od dnevnog boravka sa trpezarijom i kuhinjom, spavaće sobe i kupatila. Objekat je građen po svim savremenim standardima gradnje, s tim što nijedan unutrašnji zid nije noseći što daje mogućnost izmene rasporeda po želji budućeg vlasnika. Stolarija je PVC, spoljašnja izolacija 12,5 cm i unutrašnja 2.5 cm, Demit fasada. Po želji kupca, moguć je izbor podnih obloga, keramike i sanitarije, kao i instalacija podnog grejanja. Rok završetka je maj 2026. Za kupce prvog stana, mogućnost povrata PDV-a. Ovo je samo deo naše ponude, za više informacija, stojimo vam na raspolaganju.
Dodatne informacije: Interfon, prilaz za invalide
Adresa: Tolstojeva
Klikni da pozoveš ili pošalješ poruku
Kontakt telefon
018 415 54 79
Prijavi grešku u oglasu

Klikni na dugme i šaljemo nove oglase za prodaju stanova u novogradnji u Donjoj Vrežini sa cenom oko 72.000€.

Kontaktiraj oglašivača
Expert Nekretnine - profilna slika
Expert Nekretnine
Šifra oglasa: RUMEJTOR-p-014818
018 415 54 79
Broj u registru: 1158
Zakaži gledanje stana
Pitaj oglašivača
Selektuj šta te interesuje, oglašivač će ti odgovoriti u najkraćem roku:
Ostalo:
Kontaktiraj oglašivača
Expert Nekretnine - profilna slika
Šifra oglasa: RUMEJTOR-p-014818
018 415 54 79
Broj u registru: 1158