Šifra oglasa: RUMEJTOR-5692

Jednoiposoban stan na prodaju, 38m2, 61.900€

Šifra oglasa: RUMEJTOR-5692
Niš, Palilula
Jednoiposoban stan u kvalitetnoj novogradnji sa PDV-om, Palilula ID#RUMEJTOR-5692

Cena:
61.900 €

1.629 €/m2

Klikni da pozoveš ili pošalješ poruku
Kontakt telefon
018 310 52 63

Kliknite i ostavite kontakt kako biste saznali kako ovaj stan možete kupiti uz pomoć stambenog kredita:

Cena:
Šifra oglasa:
Tip objekta:
Tip gradnje:
Kvadratura:
Sprat:
Struktura:
Uknjiženost:
Stanje objekta:
Lift:
61.900 €
RUMEJTOR-5692
Stan
Novogradnja
38 m2
2
1.5
Nije uknjižen
Izvorno
Ima lift
Oglas ažuriran: 19.09.2025 (16:25)
Oglas proveren: 25.11.2025 (08:30)

Opis oglasa:
Šifra oglasa:
RUMEJTOR-5692
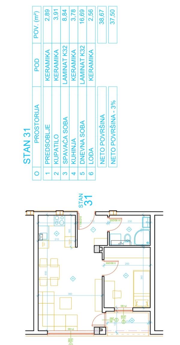
Na prodaju stan u stambenoj zgradi PO+PR+P4, na II spratu ukupne površine 37,50m2. Stan se sastoji od predsoblja, dnevne sobe sa kuhinjom i trpezarijom, jedne spavaće sobe, kupatila i lođe. Stambeni objekat će biti izgrađen po standardima ,izolacija od kamene vune d-10 cm, kvalitetna keramika iz uvoza, stolarija spoljašna PVC i sa Alu roletnama sa termo ispunom zastakljena sa niskoemisionim vakumiranim staklima, unutrašnja od furniranog medijapana, kvalitetna podna obloga sa završnim belim drvenim lajsnama, ulazna sigurnosna vrata sa atestom na vatrootpornost, u kupatilu ugradni vodokotlić, usponski tuš, stakleni paravan u skladu sa uslovima kupatila, umivaonik sa ormarićem,sve jednoručne baterije. Grejanje je mermernim grejnim telima u kombinaciji sa kaloliferom na električnu energiju i po jedna ugrađena klima u stanu. Postoji mogućnost kupovine parking mesta u sklopu stambenog objekta. U cenu je uključen PDV i kupci prvog stana imaju pravo na povraćaj PDV-a u iznosu od 10%. Hvala Vam što ste pogledali oglas. Za više informacija o ovoj ili drugim nekretninama i zakazivanje razgledanja kontaktirajte agenta na broj telefona iz oglasa (poziv, sms, viber) ili putem e-maila. Kompletnu ponudu dostupnih nekretnina možete pronaći na našem sajtu. Agencija Proagent nekretnine je upisana u Registru posrednika pod brojem: 940.
Dodatne informacije: Lift
Klikni da pozoveš ili pošalješ poruku
Kontakt telefon
018 310 52 63
Prijavi grešku u oglasu

Klikni na dugme i šaljemo nove oglase za prodaju stanova u novogradnji na Paliluli sa cenom oko 61.900€.

Kontaktiraj oglašivača
Proagent Nekretnine - profilna slika
Proagent Nekretnine
Šifra oglasa: RUMEJTOR-5692
018 310 52 63
Agencija:
Zakaži gledanje stana
Pitaj oglašivača
Selektuj šta te interesuje, oglašivač će ti odgovoriti u najkraćem roku:
Ostalo:
Kontaktiraj oglašivača
Proagent Nekretnine - profilna slika
Proagent Nekretnine
Šifra oglasa: RUMEJTOR-5692
018 310 52 63
Agencija: