Šifra oglasa: RUMEJTOR-22510

Lokal na prodaju, 70m2, 127.000€

Šifra oglasa: RUMEJTOR-22510
Beograd, Vračar, Čubura
Poslovni prostor na prodaju, etažno grejanje, oglas ID RUMEJTOR-22510

Cena:
127.000 €

1.814 €/m2

Klikni da pozoveš ili pošalješ poruku
Kontakt telefon
Klikni na dugme da vidis broj
0653039439

Kliknite i ostavite kontakt kako biste saznali kako ovaj stan možete kupiti uz pomoć stambenog kredita:

Cena:
Šifra oglasa:
Tip objekta:
Kvadratura:
Sprat:
Način grejanja:
Uknjiženost:
127.000 €
RUMEJTOR-22510
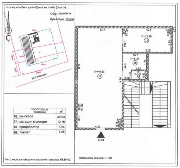
Poslovni prostor
70 m2
SUT
EG
Uknjižen
Oglas ažuriran: 02.07.2025 (15:21)
Oglas proveren: 24.10.2025 (04:25)

Opis oglasa:
Šifra oglasa:
RUMEJTOR-22510
Vračar, Čubura - Skver Slobodana Markovića

poslovni, prostor, 2.0, 70m2, EG, SUT/3, telefon, interfon

Prodaje se odličan stan koji se koristi kao poslovni prostor, smešten na jednoj od najtraženijih lokacija na Vračaru. Prostor je svetao, funkcionalan i lako adaptibilan.

Sastoji se od velikog centralnog dnevnog/prodajnog prostora, jedne manje radne prostorije (kancelarija ili soba za sastanke), kuhinje sa trpezarijom i kupatila.

Nalazi se u prometnom i prestižnom delu grada, idealnom za kancelarije, ordinacije, agencije ili slične delatnosti.

Već više od deset godina je izdat za poslovnu delatnost i predstavlja izuzetnu priliku za one koji traže poslovni prostor na elitnoj i dobro povezanoj lokaciji.

Uknjižen na 46m2 korisne površine, stvarna merena površina iznosi 70m2.

Agencijska provizija 2%

Agent: Branko Dragović 060/16-98-987 (licenca br. 4066)
Klikni da pozoveš ili pošalješ poruku
Kontakt telefon
Klikni na dugme da vidis broj
0653039439
Prijavi grešku u oglasu

Klikni na dugme i šaljemo nove oglase za prodaju poslovnih prostora na Čuburi sa cenom oko 127.000€.

Kontaktiraj oglašivača
Kvadrat nekretnine - profilna slika
Kvadrat nekretnine
Šifra oglasa: RUMEJTOR-22510
Klikni na *** za prikaz broja telefona
0653039439

Broj u registru: 167
Zakaži gledanje stana
Pitaj oglašivača
Selektuj šta te interesuje, oglašivač će ti odgovoriti u najkraćem roku:
Ostalo:
Kontaktiraj oglašivača
Kvadrat nekretnine - profilna slika
Šifra oglasa: RUMEJTOR-22510
Klikni na *** za prikaz broja telefona
0653039439

Klikni na *** za prikaz broja telefona
0113348871

Klikni na *** za prikaz broja telefona
0113348836

Klikni na *** za prikaz broja telefona
0116305219

Broj u registru: 167