Šifra oglasa: RUMEJTOR-p-013813

Nikole Rašića Koleta, Dvoiposoban stan na prodaju, 59m2, 94.640€

Šifra oglasa: RUMEJTOR-p-013813
Niš, Pantelej, Donja Vrežina - Nikole Rašića Koleta
Niš, 2.5 sobe, Donja Vrežina, 59m2

Cena:
94.640 €

1.604 €/m2

Klikni da pozoveš ili pošalješ poruku
Kontakt telefon
018 415 54 79

Kliknite i ostavite kontakt kako biste saznali kako ovaj stan možete kupiti uz pomoć stambenog kredita:

Cena:
Šifra oglasa:
Tip objekta:
Tip gradnje:
Kvadratura:
Sprat:
Struktura:
Uknjiženost:
Stanje objekta:
Terasa:
Lift:
94.640 €
RUMEJTOR-p-013813
Stan
Novogradnja
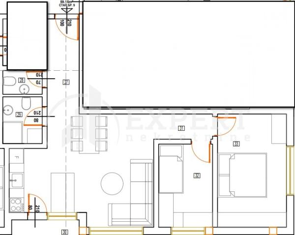
59 m2
1
2.5
Nije uknjižen
Izvorno
Ima terasu
Ima lift
Oglas ažuriran: 15.10.2025 (07:46)
Oglas proveren: 27.01.2026 (11:25)

Opis oglasa:
Šifra oglasa:
RUMEJTOR-p-013813
Na prodaju stan u izgradnji u stambenom objektu PR+3, u Donjoj Vrežini u blizini Lidla i Disa.


Stan je projektovane površine 59.15 m2, Sastoji se od hodnika, dnevne sobe sa kuhinjom i trpezarijom dve spavaće sobe, kupatila, wc-a i terase. Ovakva struktura je dostupna na prvom spratu. Zgrada ispunjava najnovije standarde izgradnje. Kvalitetna sedmokomorna PVC stolarija, grejanje i hlađenje u stanu invertrer klima, kuhinja i kupatilo sa prvoklasnom keramikom, bešumni lift. Parking mesto se dodatno naplaćuje.







Rok završetka radova kraj 2026. godine. Za kupce prvog stana postoji mogućnost povratka PDV-a. Ovo je samo deo naše ponude, za više informacija javite se i posetite naš sajt.
Dodatne informacije: Klima, interfon, lift
Adresa: Nikole Rašića Koleta
Klikni da pozoveš ili pošalješ poruku
Kontakt telefon
018 415 54 79
Prijavi grešku u oglasu

Klikni na dugme i šaljemo nove oglase za prodaju stanova u novogradnji u Donjoj Vrežini sa cenom oko 94.640€.

Kontaktiraj oglašivača
Expert Nekretnine - profilna slika
Expert Nekretnine
Šifra oglasa: RUMEJTOR-p-013813
018 415 54 79
Broj u registru: 1158
Zakaži gledanje stana
Pitaj oglašivača
Selektuj šta te interesuje, oglašivač će ti odgovoriti u najkraćem roku:
Ostalo:
Kontaktiraj oglašivača
Expert Nekretnine - profilna slika
Šifra oglasa: RUMEJTOR-p-013813
018 415 54 79
Broj u registru: 1158