Šifra oglasa: RUMEJTOR-9002

Dragačevska, Lokal na prodaju, 150m2, 315.000€

Šifra oglasa: RUMEJTOR-9002
Beograd, Voždovac, Pašino brdo - Dragačevska
Poslovni prostor na prodaju, etažno grejanje, objekat ima parking, oglas ID RUMEJTOR-9002

Cena:
315.000 €

2.100 €/m2

Klikni da pozoveš ili pošalješ poruku
Kontakt telefon
011 412 83 75

Cena:
Šifra oglasa:
Tip objekta:
Kvadratura:
Sprat:
Način grejanja:
Uknjiženost:
315.000 €
RUMEJTOR-9002
Poslovni prostor
150 m2
1
EG
Uknjižen
Oglas ažuriran: 20.01.2025 (11:06)
Oglas proveren: 23.10.2025 (14:25)

Opis oglasa:
Šifra oglasa:
RUMEJTOR-9002
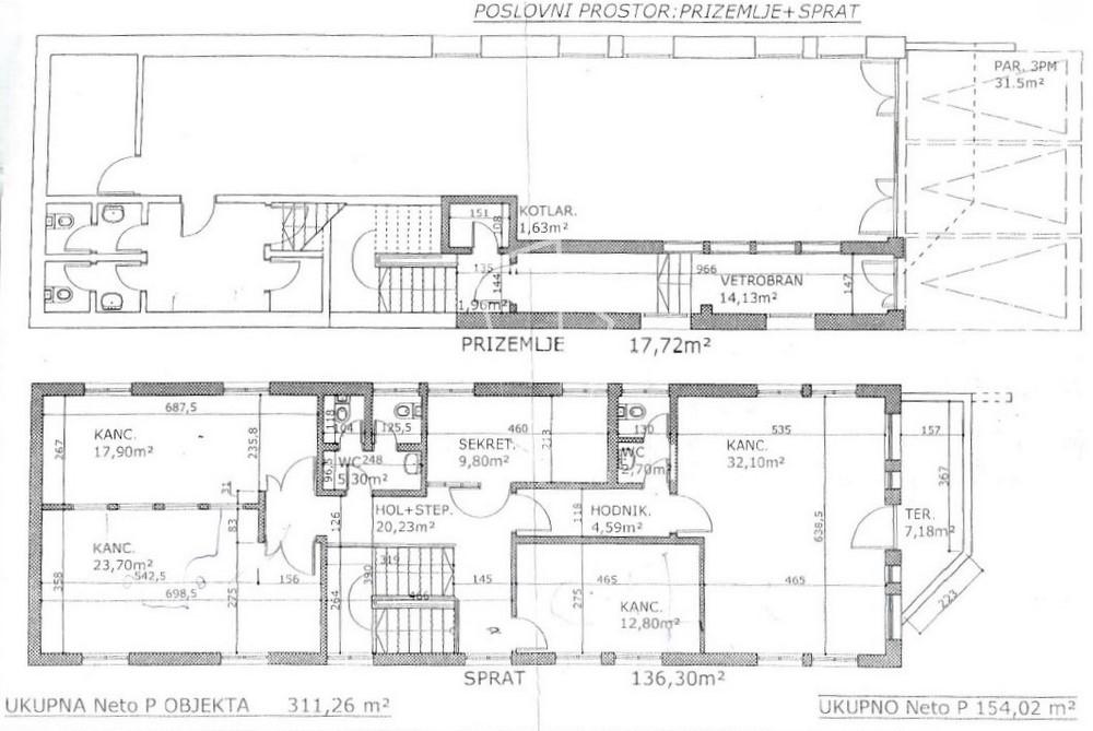
Uknjižen prostor 150m2 na I spratu sa posebnim ulazom, idealan kako za biznis tako i za stanovanje.

Prostor čine 4 sobe - kancelarije, 1 kuhinja, 3 toaleta, terasa.

Etažno grejanje, dve telefonske linije, 3 klime, interfon, centralni alarmni sistem, računarska mreža između soba/kancelarija, optički internet mts i kablovska SBB.
Prostor se prodaje potpuno opremljen nameštajem.
Prodavac je vlasnik i prizemnog dela te postoji mogućnost kupovine celog objekta.
Lokacija i pristup prostoru odlični, bez ulaganja, 1 parking mesto na parceli.
Bez tereta.

Agenc. provizija 2%
Agent: Smilja Stojadinovic br. licence 3006
“Art nekretnine“ d.o.o. Beograd. Reg. br.339
.
Dodatne informacije: Sanitarni čvor, klima
Adresa: Dragačevska
Klikni da pozoveš ili pošalješ poruku
Kontakt telefon
011 412 83 75
Prijavi grešku u oglasu

Klikni na dugme i šaljemo nove oglase za prodaju poslovnih prostora na Pašinom brdu sa cenom oko 315.000€.

Kontaktiraj oglašivača
Art nekretnine - profilna slika
Art nekretnine
Šifra oglasa: RUMEJTOR-9002
011 412 83 75
Broj u registru: 339
Zakaži gledanje stana
Pitaj oglašivača
Selektuj šta te interesuje, oglašivač će ti odgovoriti u najkraćem roku:
Ostalo:
Kontaktiraj oglašivača
Art nekretnine - profilna slika
Šifra oglasa: RUMEJTOR-9002
011 412 83 75
Broj u registru: 339