Šifra oglasa: RUMEJTOR-321389

Klisa, Troiposoban stan na prodaju, 73.61m2

Šifra oglasa: RUMEJTOR-321389
Novi Sad, Klisa - Klisa
Novi Sad, 3.5 sobe, Klisa, 73.61m2

Cena:
Cena na upit
Klikni da pozoveš ili pošalješ poruku
Kontakt telefon
Klikni na dugme da vidis broj
0213106491

Kliknite i ostavite kontakt kako biste saznali kako ovaj stan možete kupiti uz pomoć stambenog kredita:

Cena:
Šifra oglasa:
Tip objekta:
Tip gradnje:
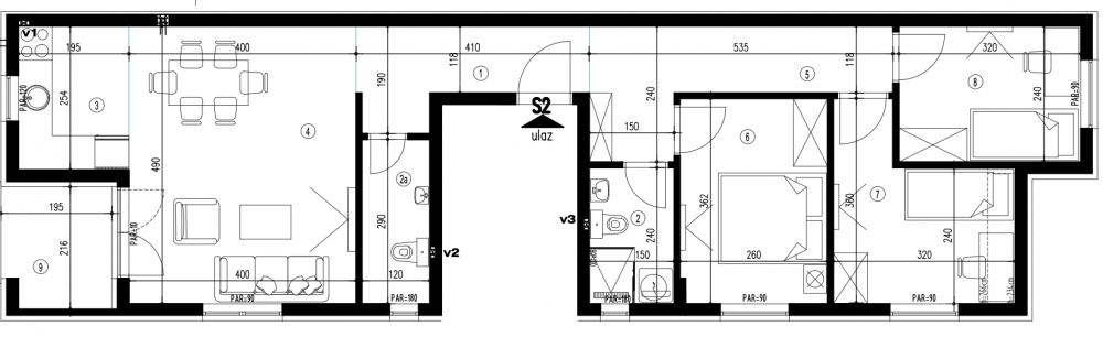
Kvadratura:
Struktura:
Uknjiženost:
Stanje objekta:
Terasa:
Lift:
Cena na upit
RUMEJTOR-321389
Stan
Novogradnja
73.61 m2
3.5
U izgradnji
U izgradnji
Ima terasu
Ima lift
Oglas ažuriran: 22.12.2024 (08:54)

Opis oglasa:
Šifra oglasa:
RUMEJTOR-321389
Na prodaju moderno projektovan troiposoban stan u mirnom naselju Klisa, idealan za komforan i kvalitetan život. Stan se nalazi u maloj, porodičnoj zgradi koja se gradi od najkvalitetnijih materijala, sa izolacijom od 10 cm fasadnog stiropora i šestokomornom PVC stolarijom sa ALU roletnama.

U stanovima su postavljena unutrašnja vrata od medijapana, sigurnosna ulazna vrata sa sertifikatom protivpožarnosti, kao i kvalitetna podna obloga sa belim drvenim lajsnama. Grejanje je podno, što obezbeđuje dodatnu udobnost tokom hladnih dana, dok klima uređaji i toplotne pumpe pružaju optimalne uslove za boravak tokom cele godine. Kupatila su opremljena modernom italijanskom keramikom, ugradnim sanitarnim elementima i staklenim paravanima.

Parking mesto je besplatno za kupce stanova.

Postoji mogućnost povraćaja PDV-a za kupce prvog stana u novogradnji.
Dodatne informacije: Klima, interfon, video nadzor, lift, prilaz za invalide, parking
Adresa: Klisa
Klikni da pozoveš ili pošalješ poruku
Kontakt telefon
Klikni na dugme da vidis broj
0213106491
Prijavi grešku u oglasu

Klikni na dugme i šaljemo nove oglase za prodaju stanova u novogradnji u naselju Klisa sa cenom po dogovoru .

Kontaktiraj oglašivača
 Max novogradnja - profilna slika
Max novogradnja
Šifra oglasa: RUMEJTOR-321389
Klikni na *** za prikaz broja telefona
0213106491

Broj u registru: 711
Zakaži gledanje stana
Pitaj oglašivača
Selektuj šta te interesuje, oglašivač će ti odgovoriti u najkraćem roku:
Ostalo:
Kontaktiraj oglašivača
 Max novogradnja - profilna slika
Šifra oglasa: RUMEJTOR-321389
Klikni na *** za prikaz broja telefona
0213106491

Broj u registru: 711