Šifra oglasa: RUMEJTOR-321377

Jednoiposoban stan na prodaju, 35.32m2

Šifra oglasa: RUMEJTOR-321377
Novi Sad, Klisa
Novi Sad, 1.5 soba, Klisa, 35.32m2

Cena:
Cena na upit
Klikni da pozoveš ili pošalješ poruku
Kontakt telefon
Klikni na dugme da vidis broj
0213106491

Kliknite i ostavite kontakt kako biste saznali kako ovaj stan možete kupiti uz pomoć stambenog kredita:

Cena:
Šifra oglasa:
Tip objekta:
Tip gradnje:
Kvadratura:
Struktura:
Uknjiženost:
Stanje objekta:
Terasa:
Lift:
Cena na upit
RUMEJTOR-321377
Stan
Novogradnja
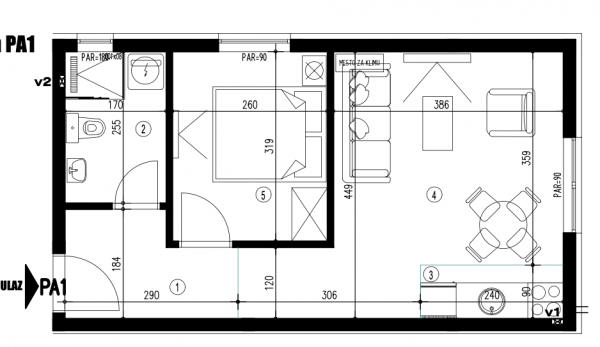
35.32 m2
1.5
U izgradnji
U izgradnji
Ima terasu
Ima lift
Oglas ažuriran: 22.12.2024 (06:28)

Opis oglasa:
Šifra oglasa:
RUMEJTOR-321377
Prodaje se jednoiposoban stan u novogradnji - stan se nalazi u zgradi projektovanoj prema savremenim standardima, sa fokusom na funkcionalnost i kvalitet gradnje. U pitanju je manja porodična zgrada u mirnom naselju Klisa,

Stanovi su osmišljeni tako da pružaju maksimalnu iskorišćenost prostora, idealni za različite potrebe – bilo da tražite manji stan za sebe ili veći za porodični život. Podno grejanje, kvalitetna PVC stolarija sa ALU roletnama i italijanska keramika dodatno doprinose udobnosti i estetici.

Uz svaki stan dolazi i besplatno parking mesto, a zgrada je smeštena na odličnoj lokaciji, u blizini pijace, osnovne škole i doma zdravlja, sa odličnom povezanošću sa centrom grada.

Za više informacija kontaktirajte nas već danas!
Dodatne informacije: Klima, interfon, video nadzor, lift, prilaz za invalide, parking
Adresa:
Klikni da pozoveš ili pošalješ poruku
Kontakt telefon
Klikni na dugme da vidis broj
0213106491
Prijavi grešku u oglasu

Klikni na dugme i šaljemo nove oglase za prodaju stanova u novogradnji u naselju Klisa sa cenom po dogovoru .

Kontaktiraj oglašivača
 Max novogradnja - profilna slika
Max novogradnja
Šifra oglasa: RUMEJTOR-321377
Klikni na *** za prikaz broja telefona
0213106491

Broj u registru: 711
Zakaži gledanje stana
Pitaj oglašivača
Selektuj šta te interesuje, oglašivač će ti odgovoriti u najkraćem roku:
Ostalo:
Kontaktiraj oglašivača
 Max novogradnja - profilna slika
Šifra oglasa: RUMEJTOR-321377
Klikni na *** za prikaz broja telefona
0213106491

Broj u registru: 711